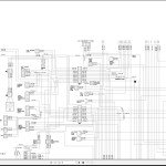
Bobcat E35 Hydraulic & Electric Circuit Diagram
Size: 21.0 MB
Machine: Compact Excavator
Machine Model: E35
Contents:
Bobcat E35 Electric Schematic 6987276
Bobcat E35 Hydraulic Schematic 6987276
Bobcat E35 Electric Schematic 6990712
Bobcat E35 Hydraulic Schematic 6990712
Bobcat E35 Electric Schematic 7311302
Bobcat E35 Hydraulic Schematic 7311302
Bobcat E35 Electric Schematic 7311307
Bobcat E35 Hydraulic Schematic 7311307


