BT W18 W20 Service Manual 178825-040
Size: 3.04 MB
Machine: Forklift
Machine Model: W18 W20
Series Number: 364690AA
Publication Date: 04/2002
Pages: 106 Pages
Order Number: 178825-040
The Bookmarks of BT W18 W20 Forklift Service Manual:
Contents 1
Technical data 2
Introduction Maintenance 3
Maintenance Lubrication schedule 4
Od and grease specification 5
Tools 6
Electric drive motor 7
Drive unitjgear 8
Electro magnetic brake 9
Steering 10
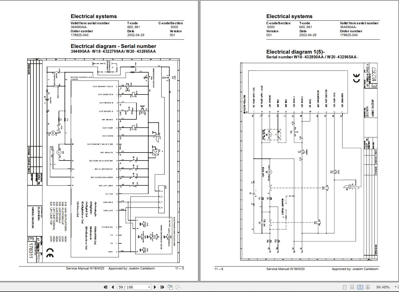
Electrical systems 11
Adjustments W18
Adjustments W20
Battery charger (Inbuilt) 13
ControVcomputer equipment 14


