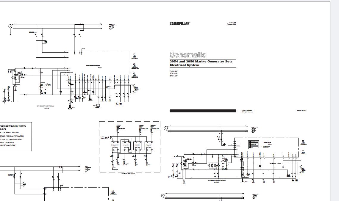
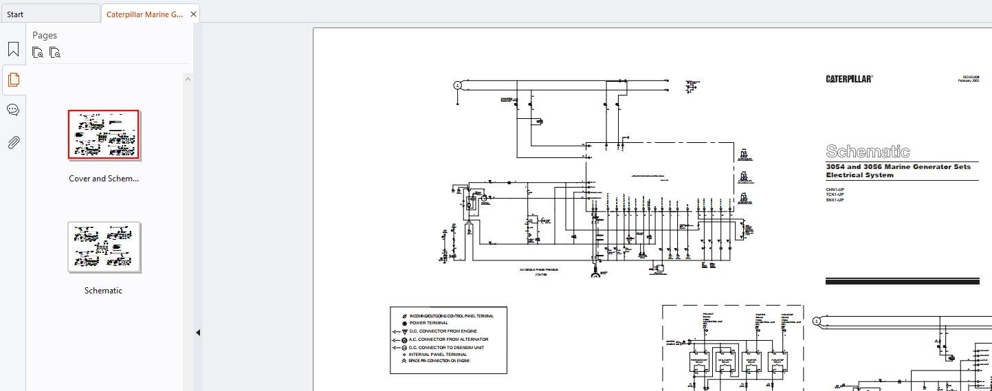
Caterpillar 3054 3056 Electrical Schematics RENR2408-00
Data Size: 0.73 MB
File Type: PDF
Language: English
Manufacturer: Caterpillar
Applicable Machine: Marine Generator Sets
Document: Electrical Schematics
Machine Model: Caterpillar 3054 3056 Marine Generator Sets
Serial Number: CHN1-UP, TCN1-UP, SNX1-UP
Book Number: RENR2408-00
Publication Date: 2002
Page: 2 Pages


