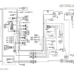
Daewoo D15S-2 to GC20SC-2 Electric Schematic SB4159E01
Size: 0.24 MB
Machine: Forklift
Machine Model: D15S-2 D18S-2 D20SC-2 With A2300 Engine, G15S-2 G18S-2 G20SC-2 GC15S-2 GC18S-2 GC20SC-2 With G420E Tier Engine
Publication Date: 2005
Pages: 2 Pages
Part Number: SB4159E01


