Fiat Allis FD30B Service Manual
size : 274 MB
Machine: Tractor-Dozer
Machine Model: Allis FD30B
Contents:
Fiat Allis FD30B Service Manual 73158163
Fiat Allis FD30B 8285 Engine Service Manual 73150208
Fiat Allis FD30B Engine Related Cummins,Cab, Air Cond Service Manual 73153880
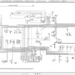
Fiat Allis FD30B Electrical System Service Manual 60406381




