Gehl HL3030 Service Parts Manual 620371
Size: 6.56 MB
Language: English
Machine: HydraCat Loader
Machine Model: HL3030
Part Number: 620371
Pages: 56 Pages
The Bookmarks of Gehl HL3030 Service Parts Manual 620371:
Introduction
Decal Locations
Engine and Pump
Engine Components
Battery and Instruments
Frame
Hydraulic Oil Tank
Fuel System
Hand Controls
Drive and Axle
Wheel
Foot Brake
Wheel Cylinder and Brake
Master Cylinder
Throttle
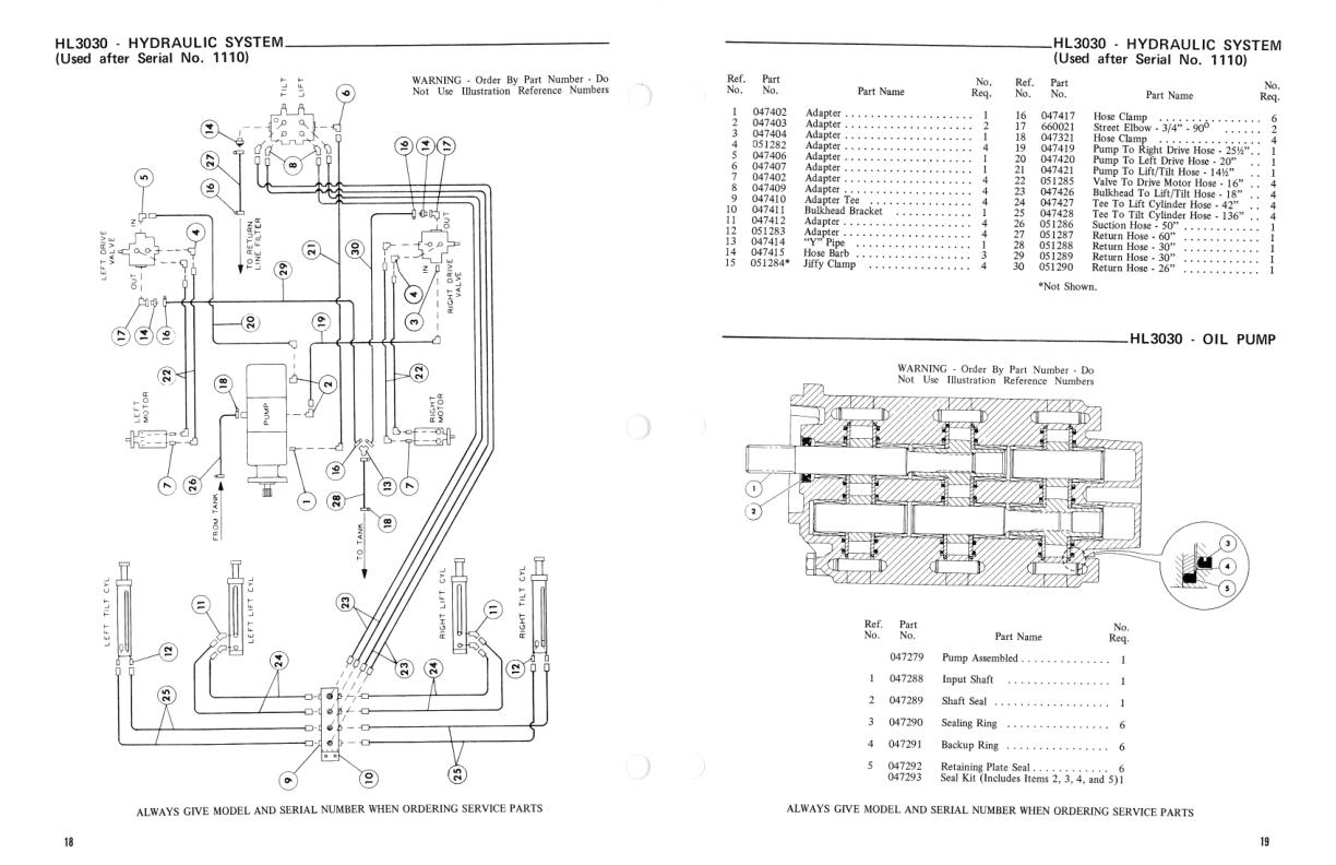
Hydraulic System (Used after
OilPump
Hydraulic System (Used before
LoadArm
Lift Cylinder
i’ilt Cylinder
Drive Control Valve
Lift and Tilt Valve
LT3030 Trailer (Used after Serial No. 1060)
Trailer Wiring
Actuator
LT3030 Trailer (Used before Serial No. 1061)
Optional Attachments
HydrauticKit
Hydraulic Control Valve
Utility Bucket, Produce and Snow Bucket, Pallet Fork,
Fertilizer Bucket
Manure Fork, Lights
Lifting Eye Kit. Overhead Guard, Brake Lock
V.Plow
Auger
Snovblover
BH3030 Backhoe
Numericallndex
Serial No. 1110)
Serial No. 1111)
#more Product: Gehl Operators Manual, Parts Catalog, Service Manual, Wiring Diagram


