Grove AT1100 Training Manuals and Schematics PDF
Data Size: 289 MB
File Type: PDF
Language: English
Manufacturer: Grove
Document: Load Chart, Operator Manual, Parts Catalog, Service Manual, Schematics
Applicable Machine: Crane
Machine Model: Grove AT 1100 Crane
List Contents:
Manuals
Capacity
Carrier Operator
Superstructure Operator
Parts
Service
Product Brochure
Multimedia
Safety
Troubleshooting
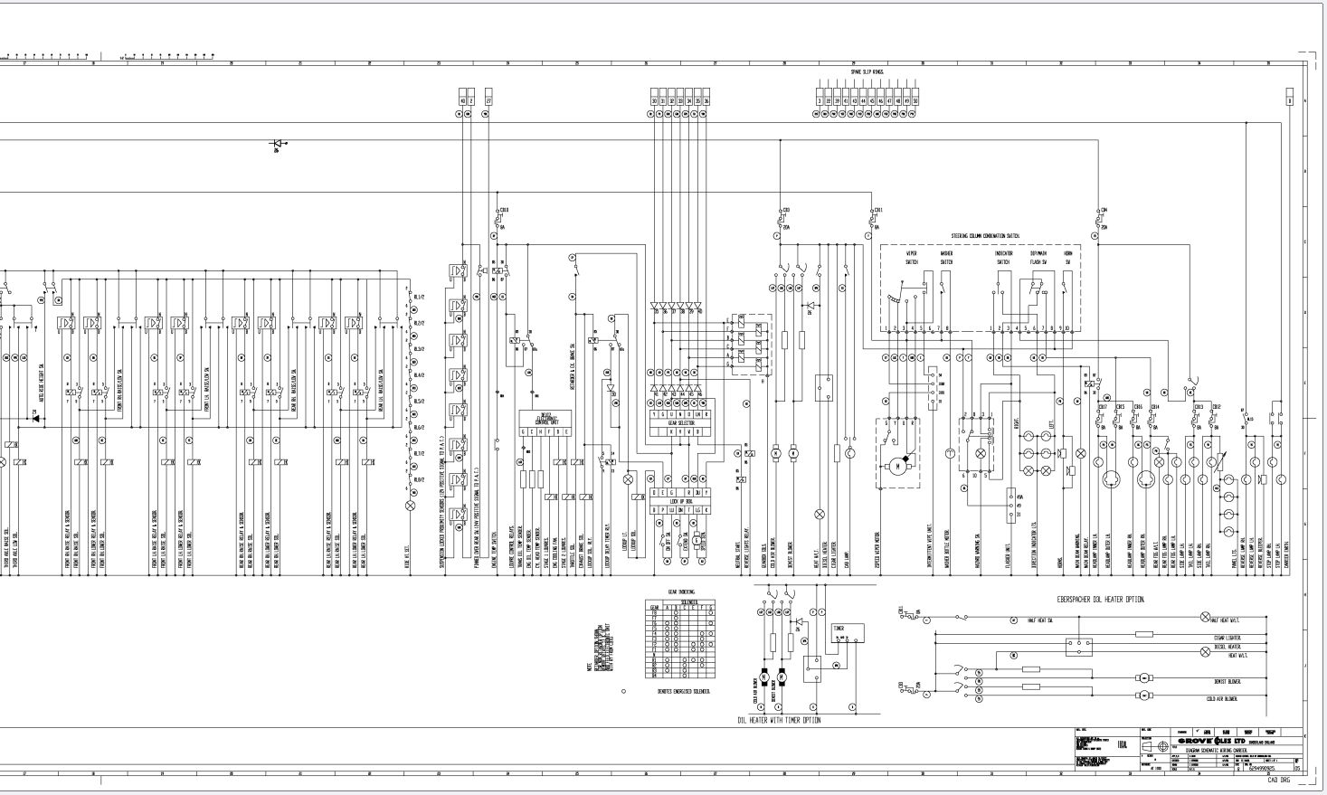
Electric Schematic
Hydraulic Schematic
Air Schematic
Information
How To Use This CD


