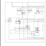
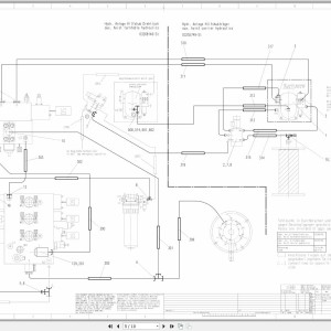
Grove GMK3040 Hydraulic and Pneumatic Schematics
Size: 5.30 MB
Language: English
Machine: Crane
Machine Model: GMK3040
Document: Hydraulic and Pneumatic Schematics
Publication Date: 2017
List Files:
Grove GMK3040 30606040 Hydraulic Diagrams
30606040 Pneumatic Diagrams


