Hidromek HMK 140LC-3 Workshop Manual H307322501
Data Size: 57.04 MB
File Type: PDF
Language: English
Manufacturer: Hidromek
Applicable Machine: Excavator
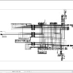
Document: Workshop Manual, Electric and Hydraulic Diagrams
Machine Model: Hidromek HMK 140LC-3 Excavator
Book Number: H307322501
Page: 600 Pages
List Contents:
00 FOREWORD
01 Structure of Workshop Manual
02 How to Read This Manual
03 Conversion Tables
01 GENERAL
01 Safety Precautions
02 Specifications
02 TESTING AND ADJUSTING
01 Performance Standard Table
02 Test Procedures
A ENGINE SYSTEM
01 Engine Mounting
02 Air Intake System
03 Exhaust System
04 Cooling System
05 Fuel System
06 Fuel Feed Pump
07 Aircondition and Heater
B FRAME & COWLING
01 Upper Frame and Related Parts
02 Lower Frame and Related Parts
C OPERATOR CAB
01 Cabin and Related Parts
D ATTACHMENT
01 Attachment Mounting
02 Quick Coupling
03 Hydraulic Breaker
F HYDRAULIC SYSTEM
01 Hydraulic System
HMK 140 LC3 Hydraulic Diagrams
G HYDRAULIC COMPONENTS
01 Hydraulic Pumps
02 Main Control Valve
03 Swing Unit
04 Travel Motors
05 Travel Pedal Valve
06 Joysticks
07 Solenoid Valve Block
08 Hydraulic Cylinders
09 Hydraulic Accumulators
K ELECTRICAL SYSTEM
01 Main Electrical System
HMK 140LC3 Electrical Harness Diagram


