Hidromek HMK 300LC-3 Workshop Manual
Data Size: 90.95 MB
File Type: PDF
Language: English
Manufacturer: Hidromek
Applicable Machine: Excavator
Document: Workshop Manual, Electric and Hydraulic Diagrm
Machine Model: Hidromek HMK 300LC-3 Excavator
Page: 674 Pages
List Contents:
HMK 300LC-3 Stage3B WORKSHOP MANUAL
00 FOREWORD
01 Structure of Workshop Manual
02 How to Read This Manual
03 Conversion Tables
01 GENERAL
01 Safety Precautions
02 Specifications
02 TESTING AND ADJUSTING
01 Performance Standard Table
02 Test Procedures
A ENGINE SYSTEM
01 Engine Mounting
02 Air Intake System
03 Exhaust System
04 Cooling System
05 Fuel System
06 Fuel Feed Pump Ass'y
07 Air Condition and Heater
B FRAME AND COWLING
01 Upper Frame and Related Parts
02 Lower Frame and Related Parts
C OPERATOR CAB
01 Cabin and Related Parts
D ATTACHMENTS
01 Attachment Mounting
02 Quick Coupling
03 Hydraulic Breakers
F HYDRAULIC SYSTEM
01 Hydraulic System
02 Hydraulic Diagrams
G HYDRAULIC COMPONENTS
01 Hydraulic Pumps
02 Main Control Valve
03 Swing Unit, Motor
04 Swing Unit, Reduction Gear
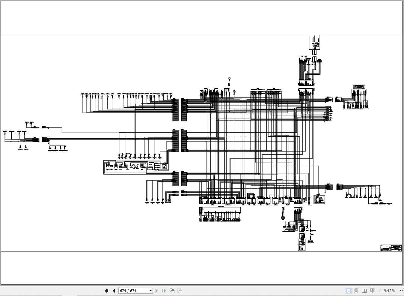
K ELECTRICAL SYSTEM
01 Main Electrical System
02 Electrical Harness Diagram


