Hitachi EX1200-5 Technical Manual Troubleshooting TT183E-01
Size: 24.2 MB
Machine: Hydraulic Excavator
Machine Model: EX1200-5
Part Number: TT183E-01
Content:
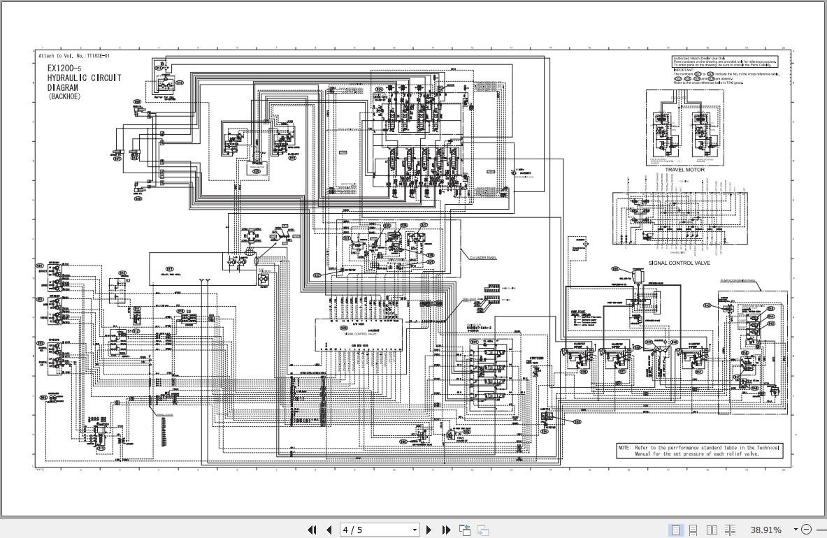
Hitachi EX1200-5 Electrical & Hydraulic Circuit Diagram TT183E-01 5 Pages
Hitachi EX1200-5 Technical Manual Troubleshooting TT183E-01 350 Pages
Hitachi EX1200-5 Updated Information TT183E-01 26 Pages
The Bookmarks of Hitachi EX1200-5 Hydraulic Excavator Technical Manual Troubleshooting:
Introduction
Safety
All Contents
Section 4 Operational Performance Test
Group 1 Introduction
Group 2 Standard
Group 3 Engine Test
Group 4 Excavator Test
Group 5 Component Test
Section 5 Troubleshooting
Group 1 General
Group 2 Cross Reference Table
Group 3 Component Layout
Group 4 Troubleshooting A
Group 5 Troubleshooting B
Group 6 Troubleshooting C
Group 7 Troubleshooting D
Group 8 Electrical System Inspection
Revision Request Form
EX1200-5 Updated Information
The Attached Circuit Diagram List:
EX1200-5 Electrical Circuit Diagram (From machine serial no. 1001 to 1045)
EX1200-5 Electrical Circuit Diagram (From machine serial no. 1046 and after)
EX1200-5 Connectors
EX1200-5 Backhoe Hydraulic Circuit Diagram
EX1200-5 Loading Shovel Hydraulic Circuit Diagram


