Hitachi EX1200-5C Technical Manual Troubleshooting TT18EE-00
Size: 22.6 MB
Machine: Hydraulic Excavator
Machine Model: EX1200-5C
Part Number: KM18EE
Volumes Number: TT18EE-00
Content:
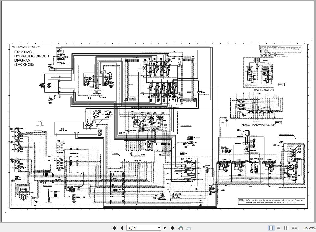
Hitachi EX1200-5C Electrical & Hydraulic Circuit Diagram TT18EE-00 4 Pages
Hitachi EX1200-5C Technical Manual Troubleshooting TT18EE-00 353 Pages
Hitachi EX1200-5C Updated Information TT18EE-00 5 Pages
The Bookmarks of Hitachi EX1200-5C Hydraulic Excavator Technical Manual Troubleshooting:
Introduction
Safety
All Contents
Section 4 Operational Performance Test
Group 1 Introduction
Group 2 Standard
Group 3 Engine Test
Group 4 Excavator Test
Group 5 Component Test
Section 5 Troubleshooting
Group 1 General
Group 2 Cross Reference Table
Group 3 Component Layout
Group 4 Troubleshooting A
Group 5 Troubleshooting B
Group 6 Troubleshooting C
Group 7 Troubleshooting D
Group 8 Electrical System Inspection
Revision Request Form
Updated Information
Attached Diagram List:
EX1200-5C Electrical Circuit Diagram
EX1200-5C Connectors
EX1200-5C Backhoe Hydraulic Circiat Diagram
EX1200-5C Loading Shovel Hydraulic Cicut Diagram


