Hitachi EX1200-7B T4F Cummins Technical Manual Troubleshooting TTKAB90-EN-01
Size: 42.1 MB
Machine: Hydraulic Excavator
Machine Model: EX1200-7B
Engine: Tier 4 Final Cummins Engine
Publication Date: 2020
Part Number: TTKAB90-EN-01
Volumes Number: TTKAB90-EN
Content:
Hitachi EX1200-7B T4F Cummins Technical TTKAB90-EN-01(20210118) 509 Pages
Hitachi EX1200-7B Electrical & hydraulic Circuit Diagram TTKAB90-EN-01 43 Pages
The Bookmarks of Hitachi EX1200-7B Hydraulic Excavator T4F Cummins Technical Manual Troubleshooting:
Introduction
Symbol And Abbreviation
Safety
Section And Group Contents
Section 4 Operational Performance Test
Group 1 Introduction
Group 2 Standard
Group 3 Engine Test
Group 4 Machine Performance Test
Group 5 Component Test
Section 5 Troubleshooting
Group 1 Diagnosing Procedure
Group 2 Monitor
Group 3 Cross Reference Table
Grouo 4 Comoonent Layout
Group 5 Troubleshooting A
Group 6 Troubleshooting B
Group 7 Troubleshooting C
Group 8 Air Conditioner
Group 9 E-Service
Group 10 Urea Scr System
Service Manual Revision Request Form
The Attached Diagram List:
Floor Harness
Cab Harness
Main Harness
Engine Harness
Control Valve Harness
Pump Harness
Def Tank Harness
Scr Harness
Speaker (L) Harness
Monitor Harness
Wiu Harness
Option Fuse Harness
Lubricate Harness (Yamada)
Counter-Weight Harness
Lubricate Harness (Lincoln)
Radiator Harness
Gsm Harness
Wiper Harness
Cab Light 1 Harness
Cab Light 2 Harness
Cab Light 3 Harness
Fender(R) Harness
Fuel Tank Harness
Boom Light Harness
Speaker(R) Harness
Boom Light (Option) Harness
Step Light Harness
Csu Cab Harness
Csu Main Harness
Csu Pump Harness
Aerial Angle Main Harness
Aerial Angle Monitor Harness
Aerial Angle Switch Harness
Switch Harness
Relay Panel Harness
Relay Panel Harness (T4F)
Oil Tank Harness
Fuel Pump Harness
Wif Harness
Connectors
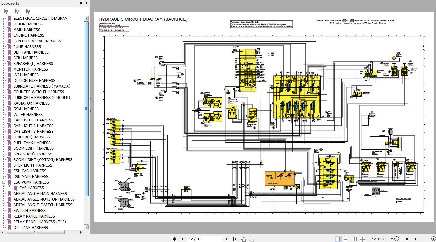
Hydrauuc Circuit Diagram (Backhoe)
Hydrauuc Circuit Diagram(Loading Shovel)


