Hitachi ZX170W-5A Technical Manual TTLBJE0-EN-00
Size: 71.0 MB
Machine: Wheeled Excavator
Machine Model: ZX170W-5A
Publication Date: 2018
Part Number: TTLBJE0-EN-00
TTLBJE0-EN-00(20180731) 531 Pages
TTLBJE0-EN-00 531 Pages
TTLBJE0-EN-00_circuit1(20180523) 18 Pages
TTLBJE0-EN-00_circuit1 19 Pages
TTLBJE0-EN-00_circuit2 15 Pages
The Bookmarks of Hitachi ZX170W-5A Wheeled Excavator Technical Manual(Troubleshooting):
Section 4 Operational Performance Test
Group 1 Introduction
Group 2 Standard
Group 3 Engine Test
Group 4 Machine Performance Test
Group 5 Component Test
Section 5 Troubleshooting
Group 1 Diagnosing Procedure
Group 2 Monitor
Group 3 E-Service
Group 4 Component Layout
Group 5 Troubleshooting A
Group 6 Troubleshooting B
Group 7 Air Conditioner
Service Manual Revision Request Form
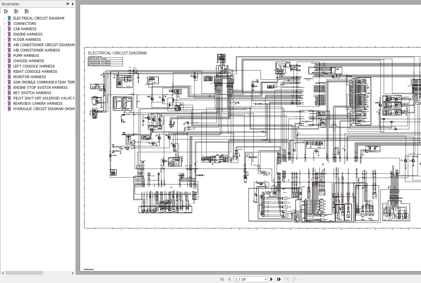
The Attached Diagram List
1. Electrical Circuit Diagram
Connectors
2. Cab Harness
Engine Harness
3. Floor Harness
4. Air Conditioner Circuit Diagram
Air Conditioner Harness
5. Pump Harness
Chassis Harness
6. Left Console Harness
Right Console Harness
7. Monitor Harness
8. Gsm (Mobile Communication Terminal) Harness
Engine Stop Switch Harness
9. Key Switch Harness
Pilot Shut-Off Solenoid Valve Harness
10. Rearview Camera Harness
Blade/Outrigger Harness
11. Hydraulic Circuit Diagram (Monoblock Boom) (Full Option)


