Hitachi ZX60-5G Technical Manual TTDEG-EN-01
Size: 11.3 MB
Machine: Hydraulic Excavator
Machine Model: ZX60-5G
Publication Date: 10.2013
Part Number: TTDEG-EN-01
TTDEG-EN-01 274 Pages
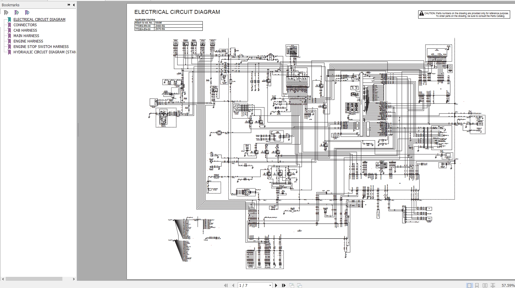
TTDEG-EN-01_Circuit 7 Pages
The Bookmarks of Hitachi ZX60-5G Hydraulic Excavator Technical Manual(Troubleshooting):
Section 4 Operational Performance Test
Group 1 Introduction
Group 2 Standard
Group 3 Engine Test
Group 4 Machine Performance Test
Group 5 Component Test
Section 5 Troubleshooting
Group 1 Diagnosing Procedure
Group 2 Component Layout
Group 3 Troubleshooting A
Group 4 Troubleshooting B
Group 5 Air Conditioner
Service Manual Revision Request Form
The Attached Diagram List


