JLG 800S HC3 860SJ HC3 PVC 2207 Service and Maintenance Manual 31220670
Size: 70.78 MB
Machine: Boom Lifts
Machine Model: 800S HC3 860SJ HC3
Product Variant Code: PVC 2207
Document: Service and Maintenance Manual
Publication Date: 2022
Pages: 710 Pages
Part Number: 31220670
The Bookmarks of JLG 800S HC3 860SJ HC3 PVC 2207 Service and Maintenance Manual 31220670:
Specifications
General
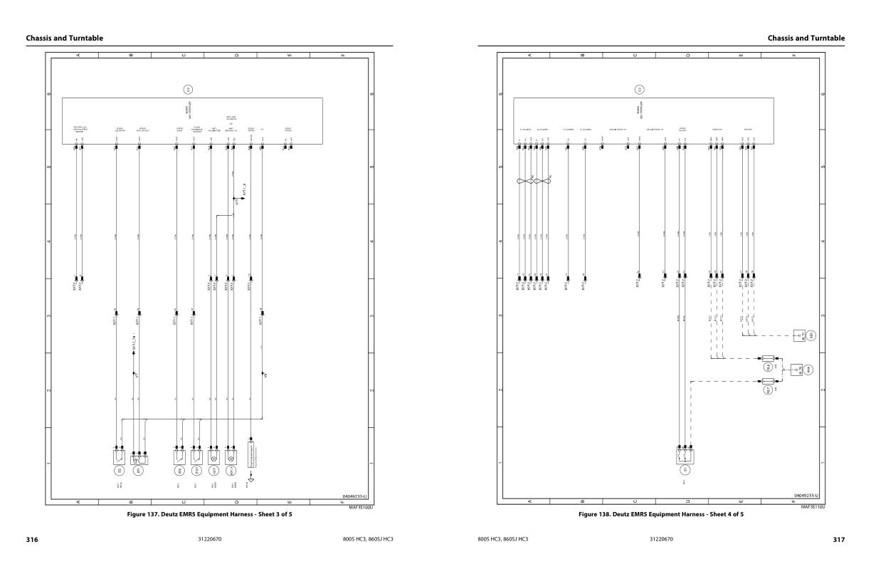
Chassis And Turntable
Boom And Platform
Basic Hydraulic Information And Schematics
JLG Control System
Basic Electrical Information And Schematics
#CLICK HERE: JLG FORKLIFT FULL MANUAL |ALL BRAND FORKLIFT|SHOPPING GUIDE|CONTACT US|PAYMENT


