John Deere 310SE 315SE Backhoe Loader Side Shift Diagnostic Operation Test Manual TM1608
Language: English
Format: PDF
Document: Diagnostic Operation Test Manual
Machine: Backhoe Loader, Side Shift
Machine Model: 310SE, 315SE
Pages: 585 Pages
Part Number: TM1608
Contents:
Foreword
Technical Information Feedback Form
General Information
Safety Information
General Specifications
Torque Values
Fuels and Lubricants
Operational Checkout Procedure
Operational Checkout Procedure
ENGINE
Theory of Operation
Diagnostic Information
Adjustments
Test
Electrical System
System Information
System Diagrams
Sub-System Diagnostics
References
Power Train
Theory of Operation
System Diagnostic Information
Adjustments
Test
Hydraulic System
Theory of Operation
Diagnostic Information
Adjustments
Test
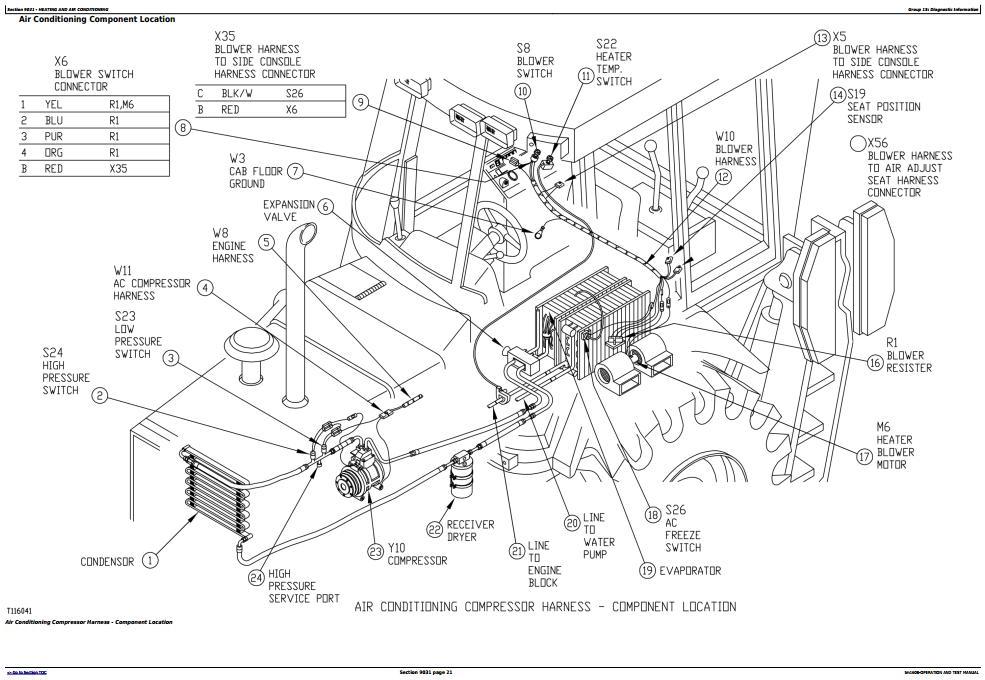
Heating And Air Conditioning
Theory Of Operation
System Operational Checks
Diagnostic Information
Adjustments
Test




