John Deere 410K Backhoe Loader Operation Test Manual TM12493
Language: English
Format: PDF
Document: Operation Test Manual
Machine: Backhoe Loader
Machine Model: 410K (PIN: 1T0410KX**E219607-) (iT4/S3B) (SN from 219607)
Pages: 1188 Pages
Part Number: TM12493
Contents:
Foreword
Manual Identification-READ THIS FIRST!
General Information
Safety
Diagnostics
Engine Control Unit (ECU) Diagnostic Trouble Codes
Standard Display Monitor (SDM) Diagnostic Trouble Codes
Transmission Control Unit (TCU) Diagnostic Trouble Codes
Vehicle Control Unit (VCU) Diagnostic Trouble Codes
Auxiliary Valve Control (AVC) Diagnostic Trouble Codes
Sealed Switch Module (SSM) Diagnostic Trouble Codes
Operational Checkout Procedure
Operational Checkout Procedure
Engine
Theory of Operation
Diagnostic Information
Adjustments
Test
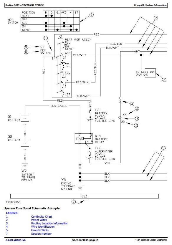
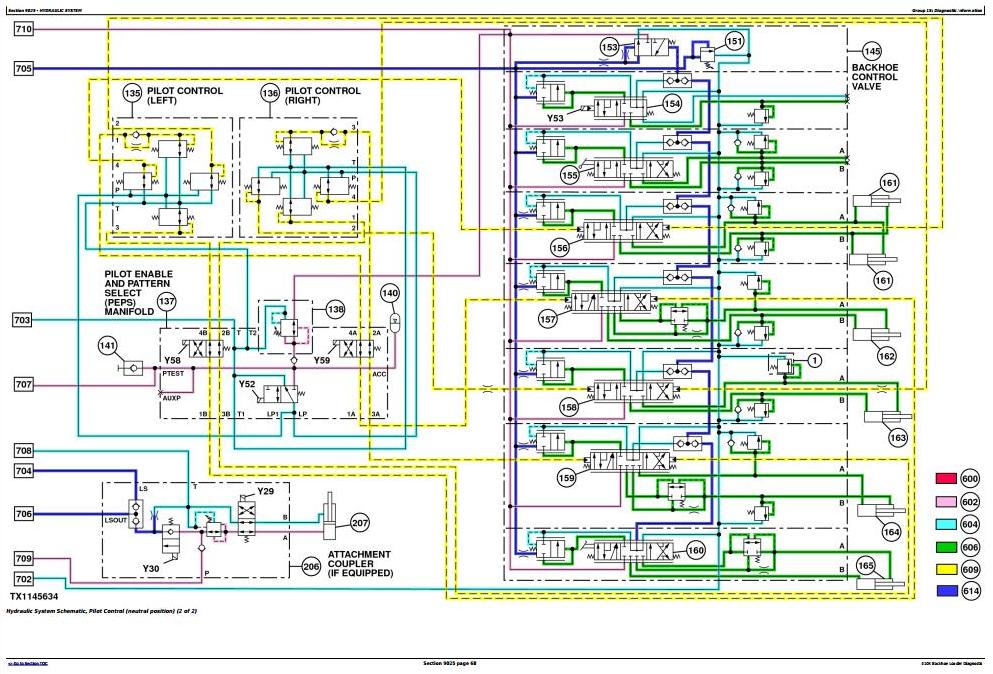
Electrical System
System Information
System Diagrams
Sub-System Diagnostics
Monitor Operation
References
Power Train




