John Deere 50ZTS Operation and Test Manual TM1817
Machine: Excavator
Machine Model: 50ZTS
Publication Date: 2014
Page: 443 Pages
Book Number: TM1817
The Bookmarks of John Deere 50ZTS Operation and Test Manual TM1817:
Foreword
Technical Information Feedback Form
General Information
Safety
General Specifications
Torque Values
Fuels and Lubricants
Operational Checkout Procedure
Operational Checkout Procedure
Engine
Theory of Operation
System Operational Checks
Diagnostic Information
Adjustments
Tests
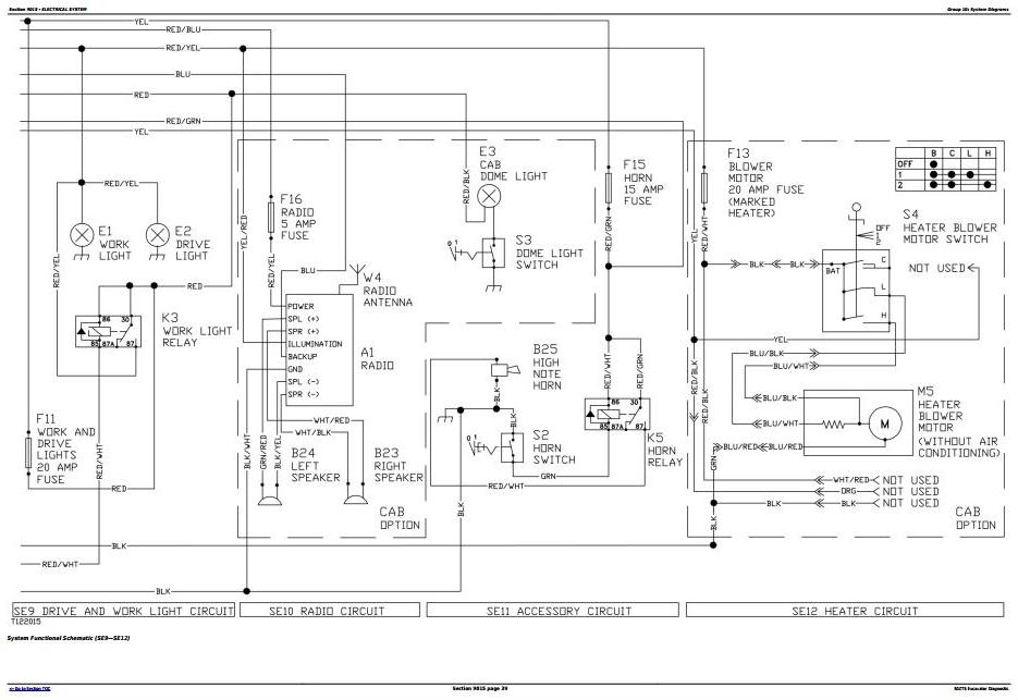
Electrical System
System Information
System Diagrams
Sub-System Diagnostics
References
Power Train
Theory of Operation
Diagnostic Information
Adjustments
Hydraulic System
Theory of Operation
Diagnostic Information
Adjustments
Tests







