John Deere 605C Crawler Loader Operator Manual OMT217598
Language: English
Format: PDF
Document: Operator Manual
Machine: Crawler Loader
Machine Model: 605C
Part Number: OMT217598
Page: 198 Pages
Contents:
Foreword
Emissions Control Warranty Statement
Technical Information Feedback Form
Safety
Safety and Operator Conveniences
General Precautions
Operating Precautions
Maintenance Precautions
Safety Signs
Operation
Operator's Station
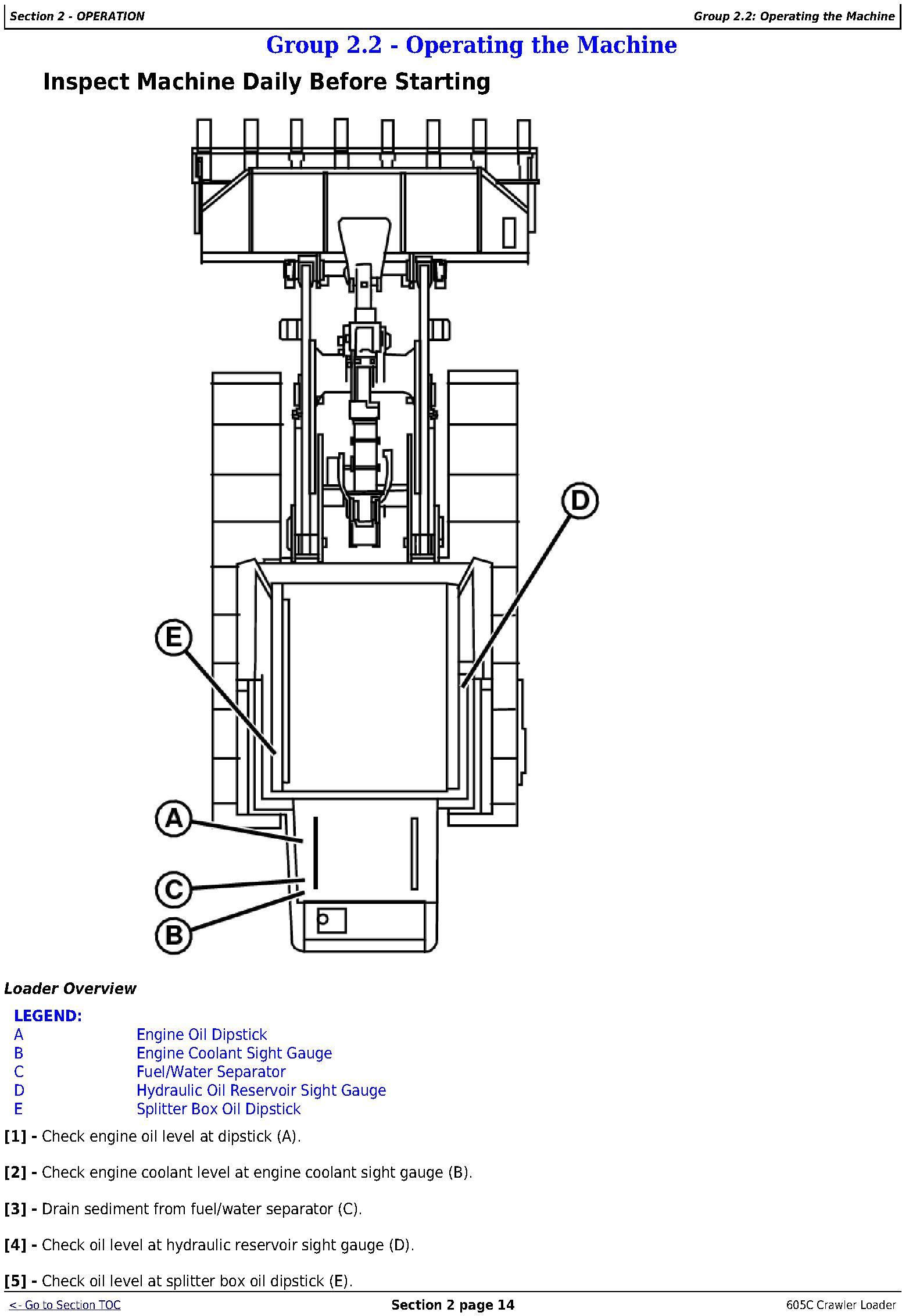
Operating the Machine
Maintenance
Machine
Periodic Maintenance
As Required
Every 10 Hours or Daily
Every 50 Hours
Initial Service - 250 Hours
Every 250 Hours
Every 500 Hours
Every 1000 Hours
Every 2000 Hours
Every 6000 Hours
Miscellaneous
Machine
Operational Checkout
Troubleshooting
Storage
Specifications
Machine Numbers




