John Deere PowerTech 4.5L 6.8L Diesel Engine Component Technical Manual CTM220
Language: English
Format: PDF
Document: Component Technical Manual
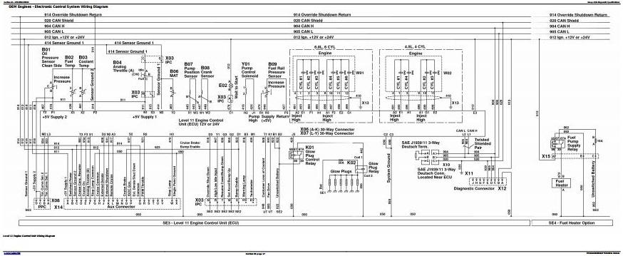
Machine: Diesel Engine Level 11 Electronic FUel System with Denso HPCR
Machine Model: 4045HF475, CD4045HL470, CD4045HL472, CD4045HL473, 6068HF475, 6068HFS76, 6068HFS77, 6068HFU74, 6068HN052, CD6068HL470, CD6068HL471, CD6068HL472, CD6068HL473, CD6068HL474, CD6068HL475, CD6068HZ470, PE6068HDW57, PE6068HDW61, PE6068HDW75, PE6068HH054, PE6068HH055, PE6068HH057, PE6068HH058, PE6068HRW53, PE6068HRW54, PE6068HRW61, PE6068HTJ54, PE6068HTJ55
Pages: 714 Pages
Part Number: CTM220
Contents:
Forward
Record of Changes
General
Safety
Engine Identification
Fuels, Lubricants, and Coolant
Repair and Adjustments
Electronic Fuel System Repair and Adjustments
Electronic Engine Control Repair and Adjustment
Theory Of Operation
Electronic Fuel System Operation
Electronic Control System Operation
Diagnostics
Observable Diagnostics and Test
Trouble Code Diagnostics and Test
Tools
Electronic Fuel/Control System Repair Tools and Other Materials
Diagnostic Service Tools
Specifications
Repair Specifications




