Liebherr LTL 1025 Z20001 Electric and Hydraulic Diagrams EN
Data Size: 12.29 MB
File Type: PDF
Language: English
Manufacturer: Liebherr
Applicable Machine: Crane
Document: Electric and Hydraulic Diagrams
Machine Model: Liebherr LTL 1025 Z20001 Crane
(LTL1025, LTL/1025, LTL_1025, LTL-1025)
List Contents:
Electric Diagram 981727908_999_EN.pdf (33 Pages)
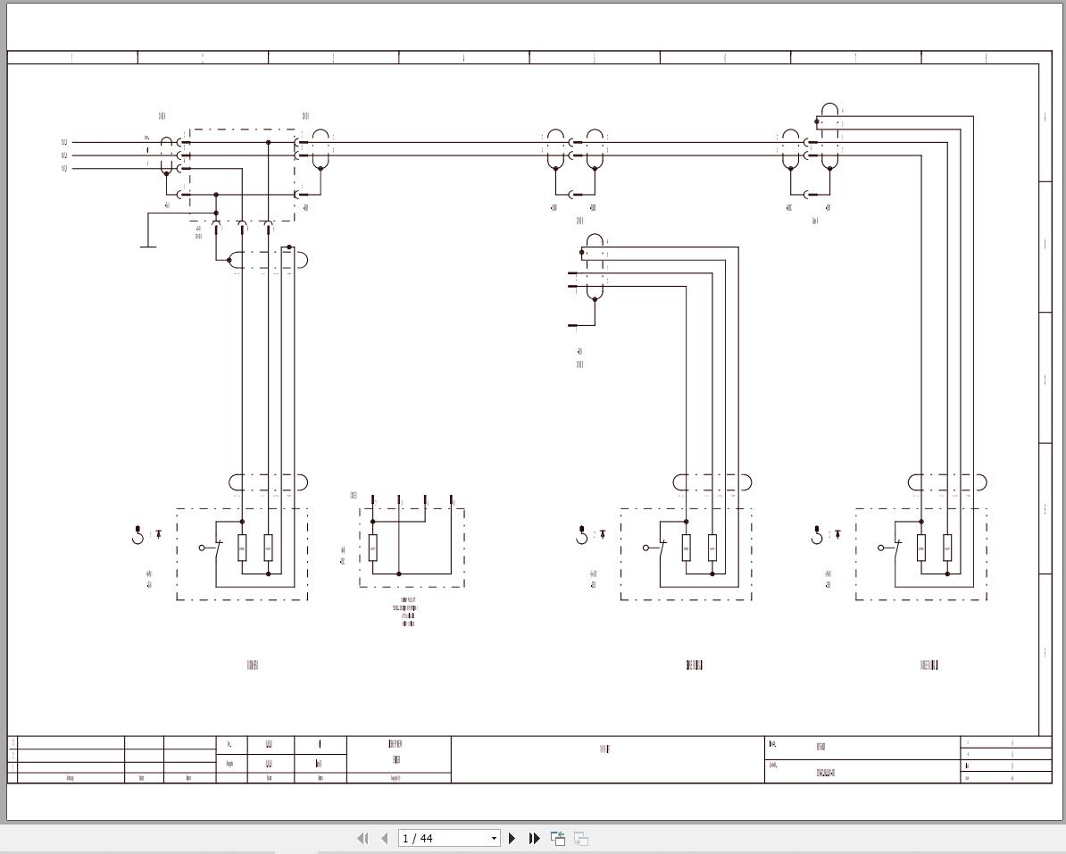
Electric Diagram 981754808_999_EN.pdf (44 Pages)
Hydraulic Diagram 981726308_003 DE EN.pdf (2 Pages)
Hydraulic Diagram 981751108_003 DE EN.pdf (2 Pages)
Hydraulic Diagram 981751208_001 DE EN.pdf (2 Pages)


