Liebherr LTL 1030 Z20017 Electric and Hydraulic Diagrams EN
Data Size: 12.29 MB
File Type: PDF
Language: English
Manufacturer: Liebherr
Applicable Machine: Crane
Document: Electric and Hydraulic Diagrams
Machine Model: Liebherr LTL 1030 Z20017 Crane
(LTL1030, LTL/1030, LTL_1030, LTL-1030)
List Contents:
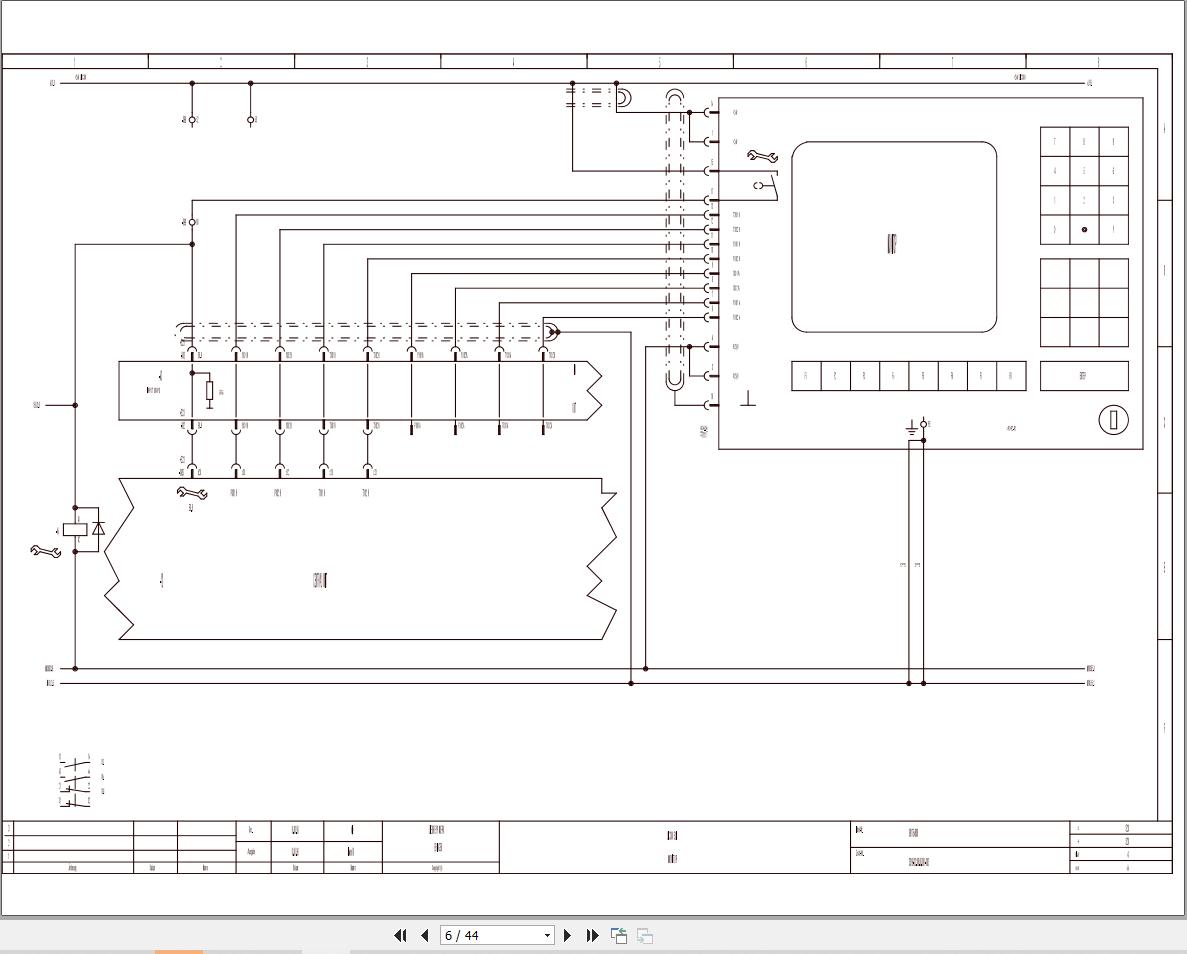
Electric Diagram 981727908_999_EN.pdf (33 Pages)
Electric Diagram 981754808_999_EN.pdf (44 Pages)
Hydraulic Diagram 981726308_003 DE EN.pdf (2 Pages)
Hydraulic Diagram 981751108_003 DE EN.pdf (2 Pages)
Hydraulic Diagram 981751208_001 DE EN.pdf (2 Pages)


