Liebherr LTM 1045 Z53150 Electric and Hydraulic Diagrams FR
Data Size: 46.83 MB
File Type: PDF
Language: French
Manufacturer: Liebherr
Applicable Machine: Crane
Document: Electric and Hydraulic Diagrams
Machine Model: Liebherr LTM 1045 Z53150 Crane
(LTM1045, LTM/1045, LTM_1045, LTM-1045)
List Contents:
Assembly Unit 983026608_999_FR.pdf (3 Pages)
Bulkhead Plate Complete 983026508_999_FR.pdf (3 Pages)
Control Hydraulics Compressed-Air System 983794508_999_FR.pdf (19 Pages)
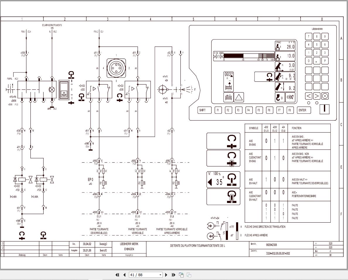
Electric Diagram 982041308_999_FR.pdf (134 Pages)
Electric Diagram 982942308_999_FR.pdf (88 Pages)
Emergency Operation Crane Hydraulics Superstructure Pipework 983021508_999_FR.pdf (5 Pages)
Hydraulics Outriggers Pipework 983008208_999_FR.pdf (6 Pages)
Hydraulics Superstructure General Layout With Emergency Lowering 982994908_999_FR.pdf (10 Pages)
Pneumatic Cabin 983015908_999_FR.pdf (4 Pages)
Pneumatic Trailer Coupling 986876908_999_FR.pdf (4 Pages)
Pneumatic Trailercoupling 981152308_999_FR.pdf (4 Pages)
Steering Hydraulics Pipework 983010108_999_FR.pdf (5 Pages)
Suspension Pipework 983004708_999_FR.pdf (5 Pages)


