Massey Ferguson 8792 8776 Service Manual 4283409M2
Size: 64.4 MB
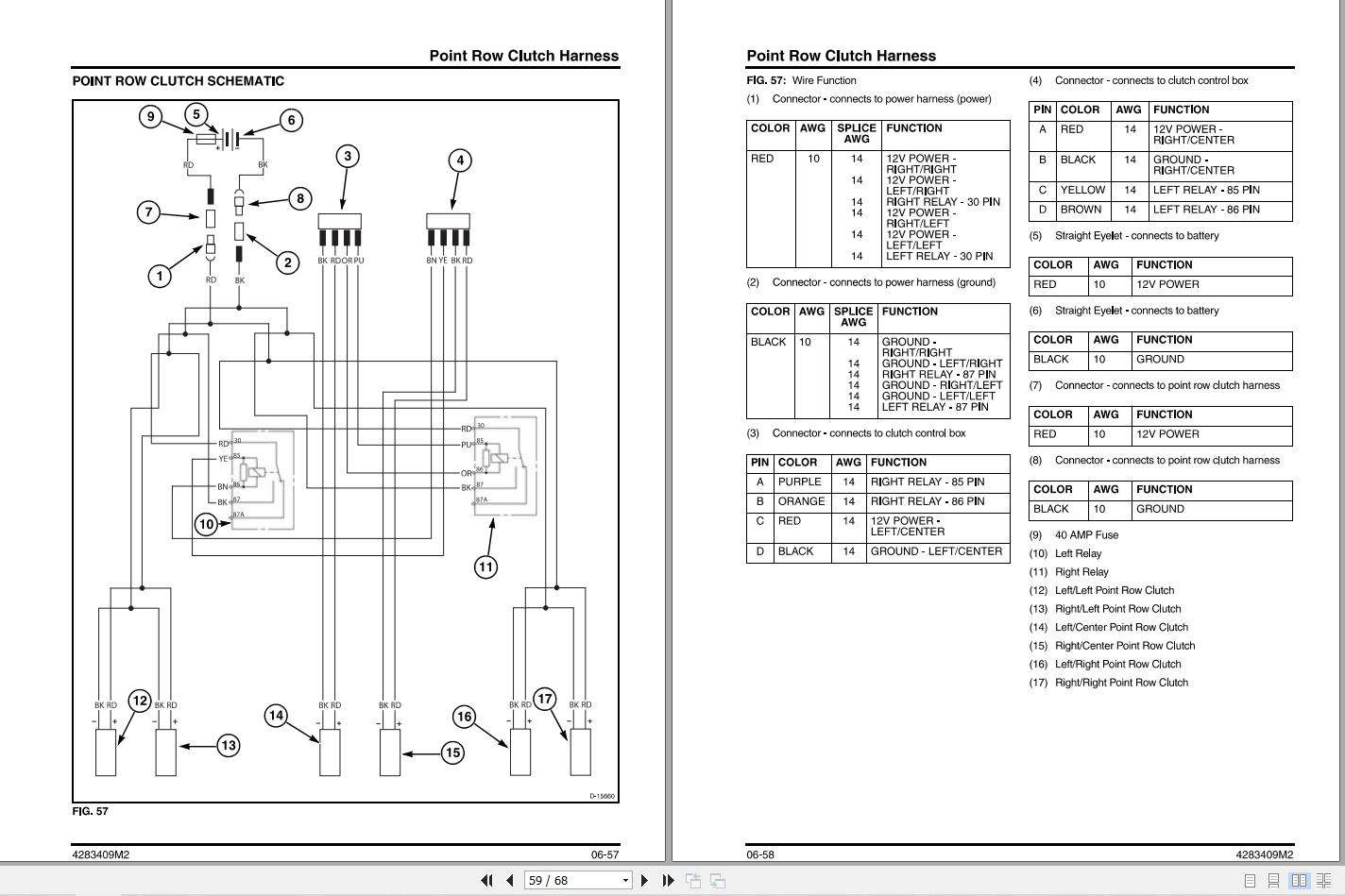
Machine: Planter, Seeding
Machine Model: 8792 8776
Region: North America
Publication Date: 2010
Part Number: 4283409M2
List Files:
Air System
Consoles and Monitors
Drive Transmission
Electrical
Frame
General Information
Hydraulics
Row Unit
TABLE OF CONTENT
Troubleshooting
#More Product : Massey Ferguson Operators, Parts, Service, Workshop Manual



