Massey Ferguson MF 660 665 Parts Catalog 1637108
Data Size: 25.43 MB
File Type: PDF
Language: English
Manufacturer: Massey Ferguson
Applicable Machine: Harvesting, Combines - Conventional
Document: Spare Parts Manual
Machine Model: MF 660 665 Combine
Book Number: 1637108
Page: 737 Pages
List Contents:
TABLE OF CONTENT
ENGINE AND ACCESSORIES
CYLINDER BLOCK
CRANKSHAFT
CYLINDER HEAD
CYLINDER HEAD COVER
ROCKER ARM
AIR INDUCTION
TIMING GEAR
LUBRICATING OIL SYSTEM
LUBRICATING OIL FILTER
WATER PUMP
FUEL PIPINGS
FUEL OIL LIFT PUMP
FUEL FILTER
FUEL INJECTION EQUIPMENT
TURBOCHARGER
TURBOCHARGER - PIPE
TURBOCHARGER - BRACKET
LUBRICATING OIL COOLER
AUXILIARY DRIVE
JOINTS AND GASKETS
ALTERNATOR POSITIONER
ALTERNATOR-LUCAS
STARTER-LUCAS
ELECTRICAL EQUIPMENT
RADIATOR
RADIATOR - TUBE
ROTATING AIR INTAKE
FUEL TANK AND ATTACHMENTS - 200 LITRES
FUEL TANK AND ATTACHMENTS - 300 L
FUEL TANK AND ATTACHMENTS - ATTACHEMENT TANK 300L
FUEL TANK AND ATTACHMENTS - TUBE
FUEL TANK AND ATTACHMENTS - COWL
AIR FILTER
AIR FILTER - DETAIL- DONALDSON
AIR FILTER - DETAIL- PROUST
AIR PRE FILTER
EXHAUST SYSTEM
ENGINE FRAME
MOTOR COVER
MOTOR COVER - CONTINUED
KNIFE
KNIFE - 14'
WOBBLE DRIVE
TABLE DRIVE - 12'
TABLE DRIVE - 14'
REEL CONTROL HEADS AND TINE SUPPORT BAR
REEL CONTROL HEADS AND TINE SUPPORT BAR - 14'
REEL DRIVING SHAFTS AND BEARING SUPPORTS
CONVEYOR ASSEMBLY APRON AND DRIVES - MAT
CONVEYOR ASSEMBLY APRON AND DRIVES - UNIVERSAL TABLE
CONVEYOR ASSEMBLY TENSION ROLLER - UNIVERSAL TABLE- 12'-14'
REEL ARMS AND SLOP ASSEMBLIES
AUGER
AUGER - 14'
TABLE
TABLE - 14'
DIVIDERS SLOPING
DIVIDERS HARPOON
ATHC - MECHANICAL- 12'
ATHC - 14'
ATHC - MECHANICAL
SENSING FINGERS
SENSING FINGERS - UNIVERSAL TABLE- 14'
CLUTCH
TABLE GUARDS
TABLE GUARDS - RAPE
TABLE GUARDS - RAPE- 14'
TRANSFER FOR TABLE
KNIFE - 10'
KNIFE - 12'
KNIFE - 16'
TABLE DRIVE - 10'
TABLE DRIVE - 16'
REEL - 10'
REEL - 12'
REEL - 14'
REEL - 16'
REEL - DRIVING SHAFTS
REEL CARRIER
AUGER - 10'
AUGER - 12'
AUGER - 16'
TABLE - 10'
TABLE - 12'
TABLE - 16'
DIVIDER - TALL CROP
ATHC - MECHANICAL- 10'
ATHC - MECHANICAL- 14'
ATHC - MECHANICAL- 16'
SENSING FINGERS - 10'
SENSING FINGERS - 12'
SENSING FINGERS - 14'
SENSING FINGERS - 16'
GUARDS - TABLE
ELEVATOR
ELEVATOR - MAIZE-PLATE-ANGLEPIECE
ELEVATOR - UPPER SHAFT
ELEVATOR - DRUM
ELEVATOR - CHAIN
CYLINDER HOUSING - LEFT SIDE
CYLINDER HOUSING - RIGHT SIDE
CYLINDER HOUSING - INTERNAL COMPONENTS
CYLINDER HOUSING - DOOR-COVER
SEPARATOR CLUTCH - CONTROLS
SEPARATOR CLUTCH
REAR BEATER - DRIVING
REAR BEATER
CYLINDER
CYLINDER - SEED BEATER-MAIZE
CYLINDER - DRIVE GEAR BOX- GEAR TRAIN
CYLINDER - DRIVE GEAR BOX
CYLINDER - DRIVE
CONCAVE - REMOVABLE WIRE NOT FITTED
CONCAVE - UNIVERSAL
CONCAVE - REMOVABLE WIRES FITTED
CONCAVE - FIXED WIRES
CONTROL LINKAGE
CONTROL LINKAGE - REAR
STONE STRAP
HOOD - HOOD-CASCADE SEPARATOR
HOOD - BELT SIGNAL
CASCADE SEPARATOR GRAIN ELEVATOR
CASCADE SEPARATOR GRAIN ELEVATOR - UPPER COMPONENTS
CASCADE SEPARATOR GRAIN ELEVATOR - LOWER COMPONENTS
GRAIN ELEVATOR - UPPER COMPOMENTS
GRAIN ELEVATOR - LOWER COMPONENT
CASCADE SEPARATOR - COWL
CASCADE SEPARATOR
CASCADE SEPARATOR - GUARDS
SHAKER SHOE - DOUBLE SHOE
SHAKER SHOE - TRIPLE SHOE
SHAKER SHOE - SHAKER SHOE TRIPLE SHOE ATTACHMENT
SHAKER SHOE - HILLSIDE KIT
PAN - DRIVE
PAN
PAN - TRIPLE SHOE
PAN - SCREEN-MAIZE
SCREEN - DOUBLE SHOE
SCREEN - TRIPLE SHOE
SCREEN - DRIVE
FANNING HILL
SHAKER SHOE DRIVE
FANNING HILL - GUARDS
STRAW WALKER - UPPER DRIVE
STRAW WALKER - LOWER DRIVE
STRAW WALKER
STRAW WALKER - DIVIDER
STRAW WALKER BODY - EXTERNAL COMPONENTS
STRAW WALKER BODY - INTERNAL COMPONENTS
GLEANINGS ELEVATOR - UPPER COMPONENTS
GLEANINGS ELEVATOR - LOWER COMPONENT
GLEANINGS ELEVATOR - SLINGER HOUSING
RETURN ELEVATOR ALARM ARRANGEMENT
ALARM
MAIN FRAME - REINFORCEMENT
MAIN FRAME - REINFORCEMENT-TRACK
MAIN FRAME - DOOR
HOOD
GRAIN TANK - LEFT COMPONENT
GRAIN TANK - RIGHT COMPONENT
GRAIN TANK - LOWER COMPONENT
GRAIN TANK - LOWER AUGER
AUGER AND PITMAN CRANK
GRAIN TANK - EXTENSION
GRAIN TANK - EXTENSION-ADJUSTMENT
GRAIN TANK - ALARM
GRAIN TANK - CHAINS
GRAIN ELEVATOR - UPPER COMPONENTS
GRAIN ELEVATOR - CHAINS
UNLOADER DRIVE AND CONTROLS
AUGER LOWER
AUGER LOWER - LOWER COMPONENT
AUGER LOWER - EXTENSION
TANK FILLING CONTROL
FLYWHEEL
TRANSMISSION - RIGHT SIDE
TRANSMISSION - LEFT SIDE
TRANSMISSION - LEFT SIDE-GUARDS MAIZE
COUNTER SHAFT AND CLUTCH
COUNTER SHAFT AND CLUTCH - LUBRICATION
SECONDARY COUNTERSHAFT
TRACTION DRIVE - VARIATOR-WITH CONSTANT MESH TRANSMISSION GEAR BOX
TRACTION CLUTCH - WITH CONSTANT MESH TRANSMISSION GER BOX
TRACTION CLUTCH - CONTROLS-WITH CONSTANT MESH TRANSMISSION GEAR BOX
TRACTION CLUTCH - PEDAL
TRACTION CLUTCH - HYDRAULIC
FRONT AXLE FINAL DRIVE-4 WHEEL DRIVE
TRANSMISSION GEAR BOX - COVER-HOUSING- CONSTANT MESH
TRANSMISSION GEAR BOX - INPUT SHAFT- CONSTANT MESH
TRANSMISSION GEAR BOX - SECOND MOTION SHAFT- CONSTANT MESH
TRANSMISSION GEAR BOX - SPEED GEAR- CONSTANT MESH
TRANSMISSION GEAR BOX - DIFFERENTIAL- CONSTANT MESH
TRANSMISSION GEAR BOX - DRIVE-UPPER COMPONENTS
TRANSMISSION GEAR BOX - DRIVE-LOWER COMPONENTS
FRONT AXLE
HAND BRAKE
GEARBOX PARKING BRAKE - DRIVE
GEARBOX PARKING BRAKE
BRAKES OPERATING - HYDRAULIC
BRAKES OPERATING - PEDAL
DRUM BRAKE
OPERATORS PLATFORM - MODEL 82
OPERATORS PLATFORM - FROM SERIAL S1329701
OPERATORS PLATFORM - RAIL-LADDER
OPERATORS PLATFORM - RICE TRACK LADDER EXTENSION
SEAT-SABLE
SPRING SUPPORT
CONTROL PANEL - HOUSING
CONTROL PANEL - GUARD LOWER
CONTROL PANEL - SOUND INSULATION
CONTROL PANEL - LEVER
CONTROL PANEL - CABLE . FROM SERIAL NU
ATHC - KIT
INSTRUMENTS - SUPPORT
INSTRUMENTS - INSTRUMENTS-SWITCH
INSTRUMENTS - JUNCTION
CAB - FRONT
CAB - REAR
CAB - RIGHT
CAB - LEFT
CAB - CONSOLE
CAB - LATCH LADDER
CAB - LATCH RAMP-GERMANY
CAB - MISCELLANEOUS
CAB - FLOOR
CAB - WIRING
AIR CONDITIONNER-COMPRESSOR - KYSOR
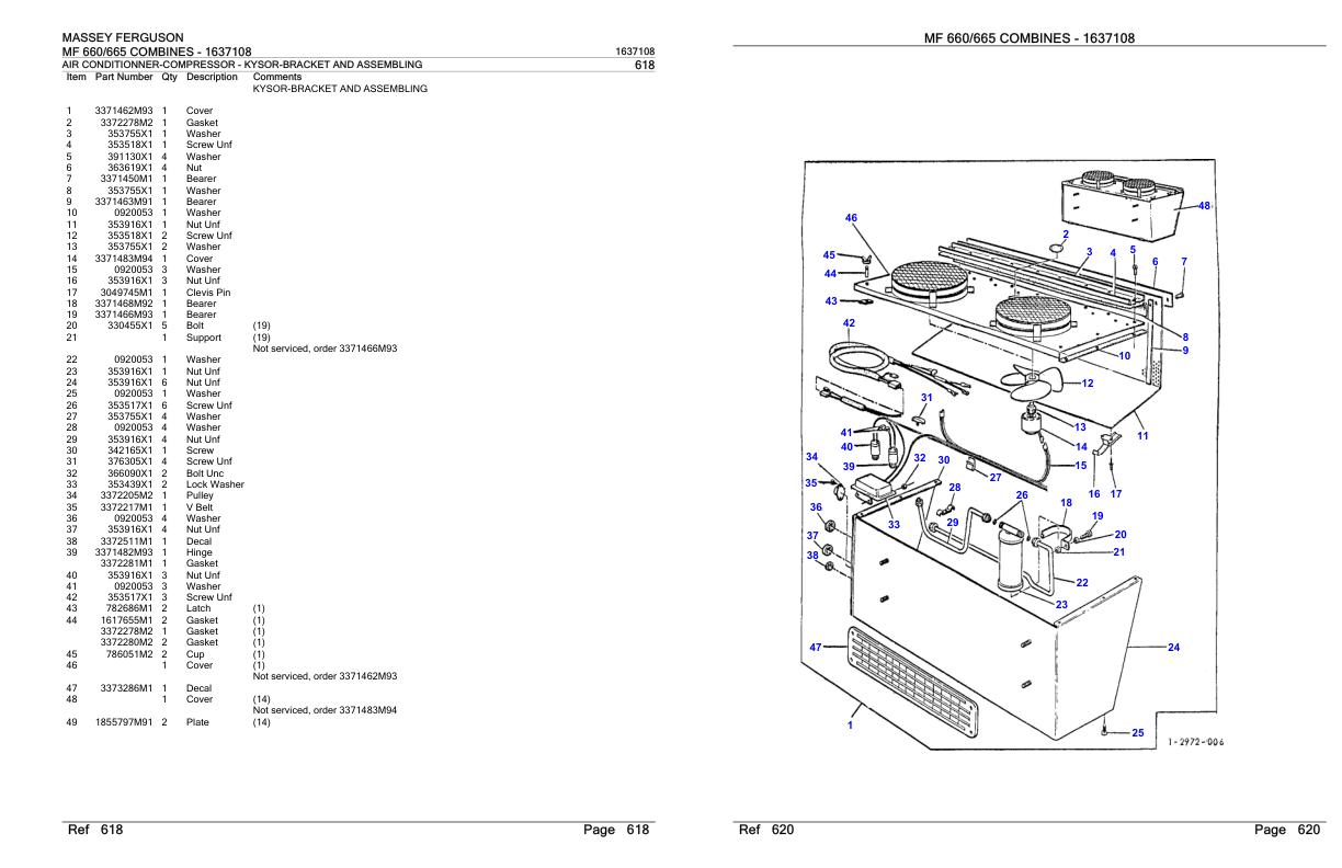
AIR CONDITIONNER-COMPRESSOR - KYSOR-BRACKET AND ASSEMBLING
AIR CONDITIONNER-CONDENSOR - KYSOR
AIR CONDITIONNER-CONDENSOR - BRACKET
AIR CONDITIONNER-EVAPORATOR - KYSOR
STEERING COLUMN
STEERING COLUMN - HOUSING
STEERING COLUMN - ADJUSTING
STEERING PUMP
SAFETY BLOCK
REAR AXLE
WHEELS
HYDRAULIC CIRCUIT - CONTAINER-PUMP-VALVE
HYDRAULIC CIRCUIT - REEL
HYDRAULIC CIRCUIT - TABLE LIFT
HYDRAULIC CIRCUIT - STEERING
HYDRAULIC CIRCUIT - TRACTION VARIATOR
HYDRAULIC CIRCUIT - REAR BEATER CLUTCH
HYDRAULIC CIRCUIT - DISCHARGE CHUTE
UNLOADER SPOUT ARRANGEMENTS
HYDRAULIC PUMP
CONTROL VALVE - UPPER COMPOMENTS
CONTROL VALVE - LOWER COMPONENT
RAM FOR TRACTION
RAM FOR STEERING
RAM FOR TABLE LIFT - RIGHT
RAM FOR TABLE LIFT - LEFT
REEL HYDROSTATIC DRIVE - NEW PROFILE TABLE- OLD MOUNTING-PULLEY
REEL HYDROSTATIC DRIVE - PULLEY
REEL HYDROSTATIC DRIVE - NEW PROFILE TABLE- OLD MOUNTING-PINIONS
REEL HYDROSTATIC DRIVE - NEW PROFILE TABLE- 10'
REEL HYDROSTATIC DRIVE - NEW PROFILE TABLE- 12'
REEL HYDROSTATIC DRIVE - NEW PROFILE TABLE- 14'
REEL HYDROSTATIC DRIVE - NEW PROFILE TABLE- 16'- PINIONS
REEL HYDROSTATIC DRIVE - GEAR
REEL HYDROSTATIC DRIVE - UNIVERSAL TABLE- 14'- PINIONS
HYDRAULIC MOTOR
REEL FORE AND AFT HYDRAULICS - NEW PROFILE TABLE- 10'
REEL FORE AND AFT HYDRAULICS - NEW PROFILE TABLE- 12'
REEL FORE AND AFT HYDRAULICS - NEW PROFILE TABLE- 14'
REEL FORE AND AFT HYDRAULICS - NEW PROFILE TABLE- 16'
REEL FORE AND AFT HYDRAULICS
REEL FORE AND AFT HYDRAULICS - UNIVERSAL TABLE- 14'
REEL LIFT HYDRAULICS - NEW PROFILE TABLE- 10'
REEL LIFT HYDRAULICS - NEW PROFILE TABLE- 12'
REEL LIFT HYDRAULICS - NEW PROFILE TABLE- 14'
REEL LIFT HYDRAULICS - NEW PROFILE TABLE- 16'
REEL LIFT HYDRAULICS - UNIVERSAL TABLE- 12'
REEL LIFT HYDRAULICS - UNIVERSAL TABLE- 14'
REEL HYDRAULIC PUMP AND TANK - NEW PROFILE TABLE- OLD MOUNTING
REEL HYDRAULIC PUMP AND TANK
HYDRAULIC CIRCUIT - UNIVERSAL TABLE- 12'-14'- THIRD CYLINDER
RAM FOR REEL LIFT - LEFT
RAM FOR REEL LIFT
RAM FOR REEL FORE AND AFT ARRANGEMENT - NEW PROFILE TABLE
RAM FOR REEL FORE AND AFT ARRANGEMENT
LIGHTING - FRONT
LIGHTING - LAMP
LIGHTING - REAR
LIGHTING - SIGNALLING
LIGHTING - HAPPER SPOTLIGHT
LIGHTING - ROTAING LIGHT-HELLA 45W
LIGHTING - ROTAING LIGHT-HELLA 21W
LIGHTING - WORKING LIGHT
MISCELLANEOUS
TRANSFERS
GUARDS - GERMANY
GUARDS - LEFT SIDE
WEIGHT FRAME AND WEIGHTS - WEIGHT
ELEVATOR - RICE MACHINES .COWL. FUEL TANK
ANTIWIND - RICE MACHINES .COWL. FUEL TANK
CYLINDER - RICE MACHINES- CONIC TEETH
CYLINDER - RICE MACHINE- TEETH WITH SPATULA
CONCAVE - RICE MACHINE- TEETH WITH SPATULA
CONCAVE - RICE MACHINE- CONICAL TEETH
REAR AXLE - RICE MACHINES .COWL. FUEL TANK
REAR AXLE - RICE MACHINE
TRACK CHAIN
UNDERCARRIAGE
TRACK CHAIN - GUARDS RICE TRACK


