Sany SSR220(A)C-8 Electrical and Hydraulic Schematics
Size: 1.03 MB
Machine: Single Drum Roller
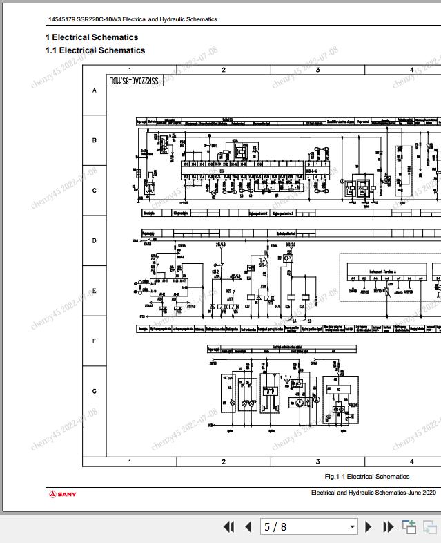
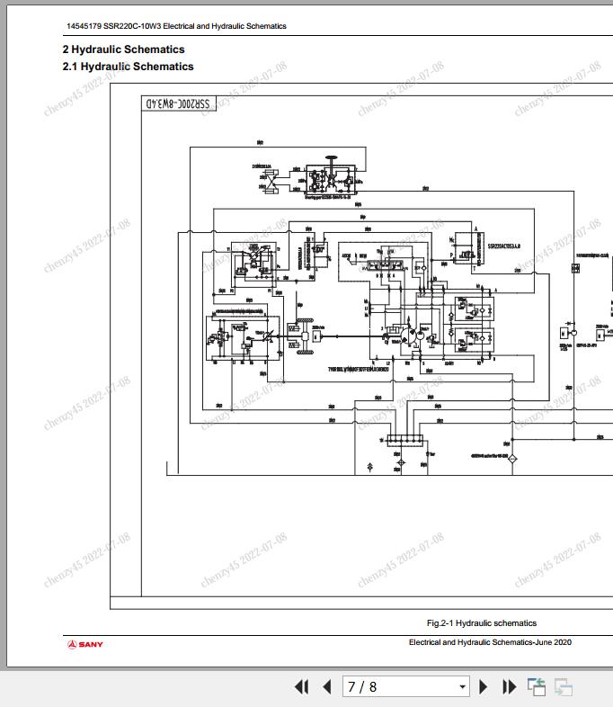
Machine Model: SSR220AC-8S.11DL SSR220C-8H SSR220C-8W3.4D
List File:
Sany SSR220AC-8S.11DL Electrical Schematic 1 Pages
Sany SSR220C-8H Electrical and Hydraulic Schematics 8 Pages
Sany SSR220C-8W3.4D Hydraulic Schematic 1 Pages
#More Product: Sany Operator, Parts, Service Manual



