Scania P 410 CB8x4MHZ Electrical Schematic PDF
Data Size: 15.34 MB
File Type: PDF
Language: English
Manufacturer: Scania
Applicable Machine: Truck
Document: Electrical Schematic, Wiring Diagram, Circuit Diagram
Machine Model: Scania P 410 CB8x4MHZ Truck
List Contents:
ACL Autom. chassis lubric. system [1512233-1-15].pdf (1 Pages)
AHS Auxiliary heater [1454073-2-14].pdf (1 Pages)
APS Air processing system [1476340-1-12].pdf (1 Pages)
ASH Ashtray [1798842-1-6].pdf (1 Pages)
ATL Trailer axle lock [1749108-1-4].pdf (1 Pages)
AUS Infotainment system [1878697-2-7].pdf (1 Pages)
AUS Infotainment system [2037459-1-6].pdf (1 Pages)
BMS Brake management system _ Anti-lock brakes [1474798-1-30].pdf (1 Pages)
BMS Brake management system _ Electronic brake system [1452080-7-14].pdf (1 Pages)
BWE Bodywork electrical system [1501893-1-5].pdf (1 Pages)
BWE Bodywork electrical system [2038974-5-2].pdf (1 Pages)
BWS Bodywork system [1473873-4-8].pdf (1 Pages)
CBR Two-way radio [1447271-2-2].pdf (1 Pages)
CCS Climate control system [1454071-4-12].pdf (1 Pages)
CCS Climate control system [1787098-1-6].pdf (1 Pages)
COO Coordinator [1441456-7-9].pdf (1 Pages)
COO Coordinator [1777955-6-3].pdf (1 Pages)
DAU Driver alert unit [2062068-1-5].pdf (1 Pages)
DIS Distance sensor system [2166239-1-6].pdf (1 Pages)
EEC Exhaust emission control syst [1926090-7-1].pdf (1 Pages)
EHW EHW [2133429-1-1].pdf (1 Pages)
EMS Engine management system [1501036-6-1].pdf (1 Pages)
EMS Engine management system [1915198-3-3].pdf (1 Pages)
EMS Engine management system [1929019-6-1].pdf (1 Pages)
EMS Engine management system [2187429-1-1].pdf (1 Pages)
FHS Fuel heater system [1546681-2-10].pdf (1 Pages)
GMS Gearbox management system [1480737-1-35].pdf (1 Pages)
GMS Gearbox management system [2063620-6-4].pdf (1 Pages)
GMS Gearbox management system [2126884-5-10].pdf (1 Pages)
HVF HVF [1548851-1-7].pdf (1 Pages)
ICL Instrument cluster [1430954-2-17].pdf (1 Pages)
INL Internal lighting [1505824-7-9].pdf (1 Pages)
LAS Locking and alarm system [1430595-1-10].pdf (1 Pages)
LAS Locking and alarm system [1430597-1-7].pdf (1 Pages)
LAS Locking and alarm system [1781242-4-6].pdf (1 Pages)
LAS Locking and alarm system [2055794-4-1].pdf (1 Pages)
MIA MIA [1516169-3-6].pdf (1 Pages)
MIH MIH [1441766-2-5].pdf (1 Pages)
MOP Mobile phone docking [1447276-2-1].pdf (1 Pages)
POW Power supply system [1395800-7-6].pdf (1 Pages)
RDL Rear differential lock system [1469630-2-16].pdf (1 Pages)
REF REF [1757930-1-3].pdf (1 Pages)
RTC Scania Communicator [1854606-5-5].pdf (1 Pages)
RTC Scania Communicator [2470200-5-1].pdf (1 Pages)
RTG RTG [1513265-1-7].pdf (1 Pages)
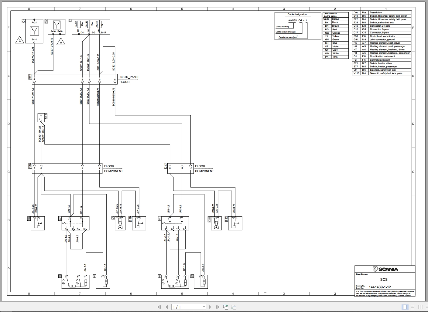
SCS Seat control system [1441439-1-12].pdf (1 Pages)
SMS Suspension management system _ Electronic level control syst [2033001-2-13].pdf (1 Pages)
TAL Tag axle lift [1907031-1-1].pdf (1 Pages)
TCO Tachograph [1440875-4-1].pdf (1 Pages)
TCO Tachograph [1852759-12-2].pdf (1 Pages)
TOL TOL [1746354-2-5].pdf (1 Pages)
VIS Visibility system [1428523-8-2].pdf (1 Pages)
VIS Visibility system [2033000-4-7].pdf (1 Pages)
WIW Electric window winder [1441768-4-2].pdf (1 Pages)


