Takeuchi TB108 Operators Parts Workshop Manual
Size: 34.1 MB
Language: English, Spanish
Document: Operators Manual,Parts Manual,Workshop Manual
Machine: Excavator
Machine Model: TB108
Contents:
TB108 Parts Manual Serial No10810004
TB108 Parts Manual Serial No10820004
TB108 Operators Manual AB5S001 serial No10820001 (170 Pages)
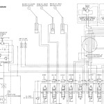
TB108 Workshop Manual (10810004~)CB5E001(WE-TB108-A) (351 Pages)
TB108 Workshop Manual (10820001~)CB5E002(WE-TB108-B) (355 Pages)




