Takeuchi TL26 Operators Parts Workshop Manual
Size: 60.9 MB
Document: Operators Manual,Parts Manual,Workshop Manual
Machine: Compact Loader
Machine Model: TL26
Contents:
Engine for TL26 (67 Pages)
TL26 Operators Manual OT5-109E0 (64 Pages)
TL26 Parts Manual PT5-101Z5 (162 Pages)
TL26 Workshop Manual WT5-101E2 (449 Pages)
TL26 Workshop Manual (2620002~)WT5-101E3(WETL26 A-XB) (449 Pages)
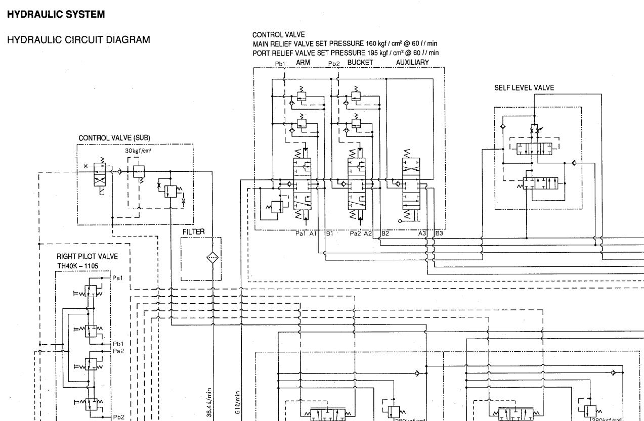
TL26 Hydraulic Circuitry (4 Pages)


