TCM FB10 FB15 FB20 FB25 FB30-7(V,LB) Service Manual SEB-81BAE
Size: 6.50 MB
Machine: Forklift
Machine Model:
FB10-7 FB15-7
FB20-7 FB25-7
FB30-7 FB25-7LB
FB25-7V FB30-7V
Page: 166 Pages
Parts Number: SEB-81BAE
The Bookmark of TCM FB10 FB15 FB20 FB25 FB30-7(V,LB) Service Manual:
Battery And Charger
Motors
Control System
Drive Unit And Drive Axle
Brake System
Steering System
Hydraulic System
Load Handling System
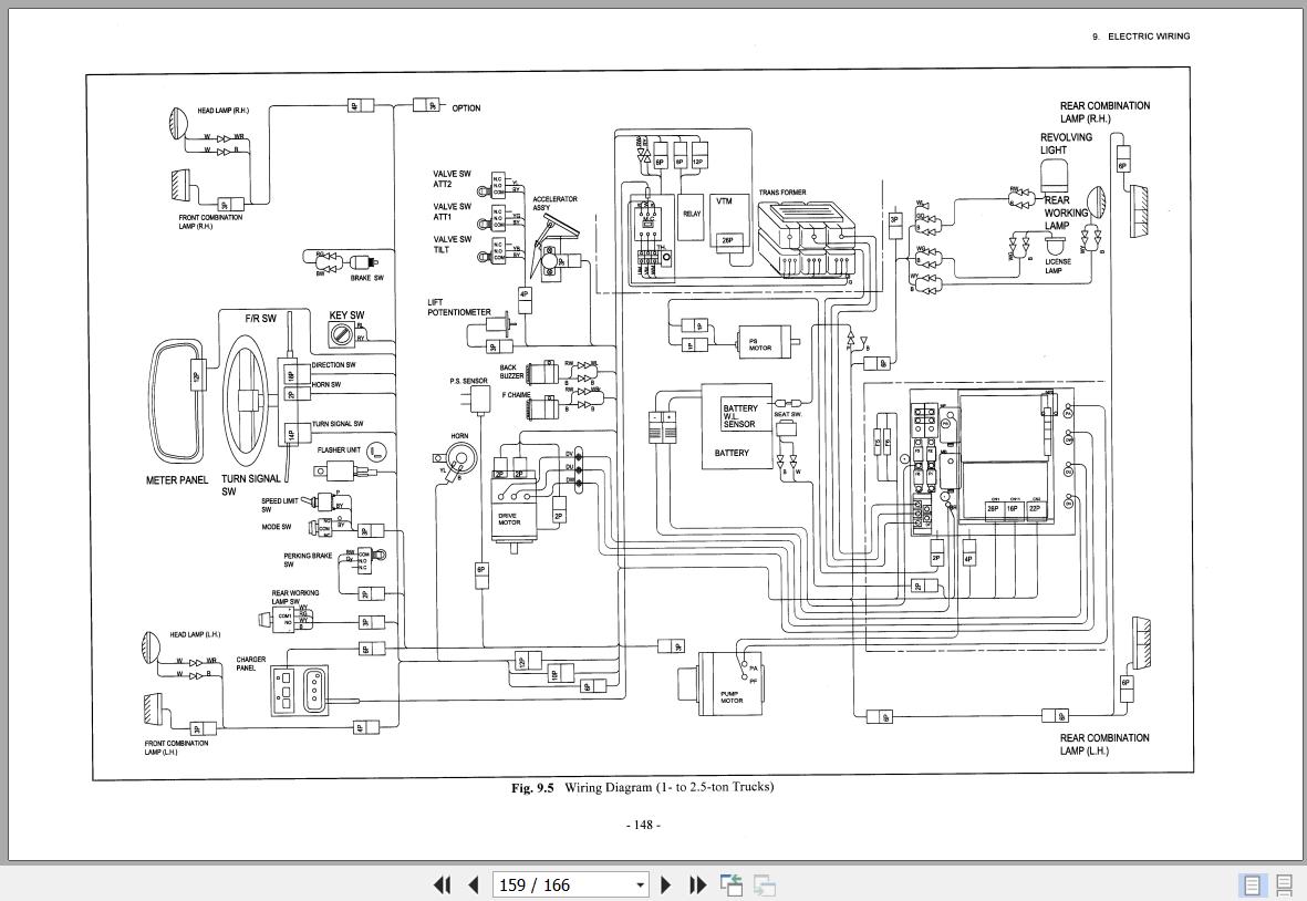
Electric Wring
#More Product: TCM Forklift Parts and Service Manual



