Volvo B5LH Bus Wiring Diagram
Size: 23.89 MB
Format: PDF
Language: English
Machine: Bus
Machine Model: B5LH
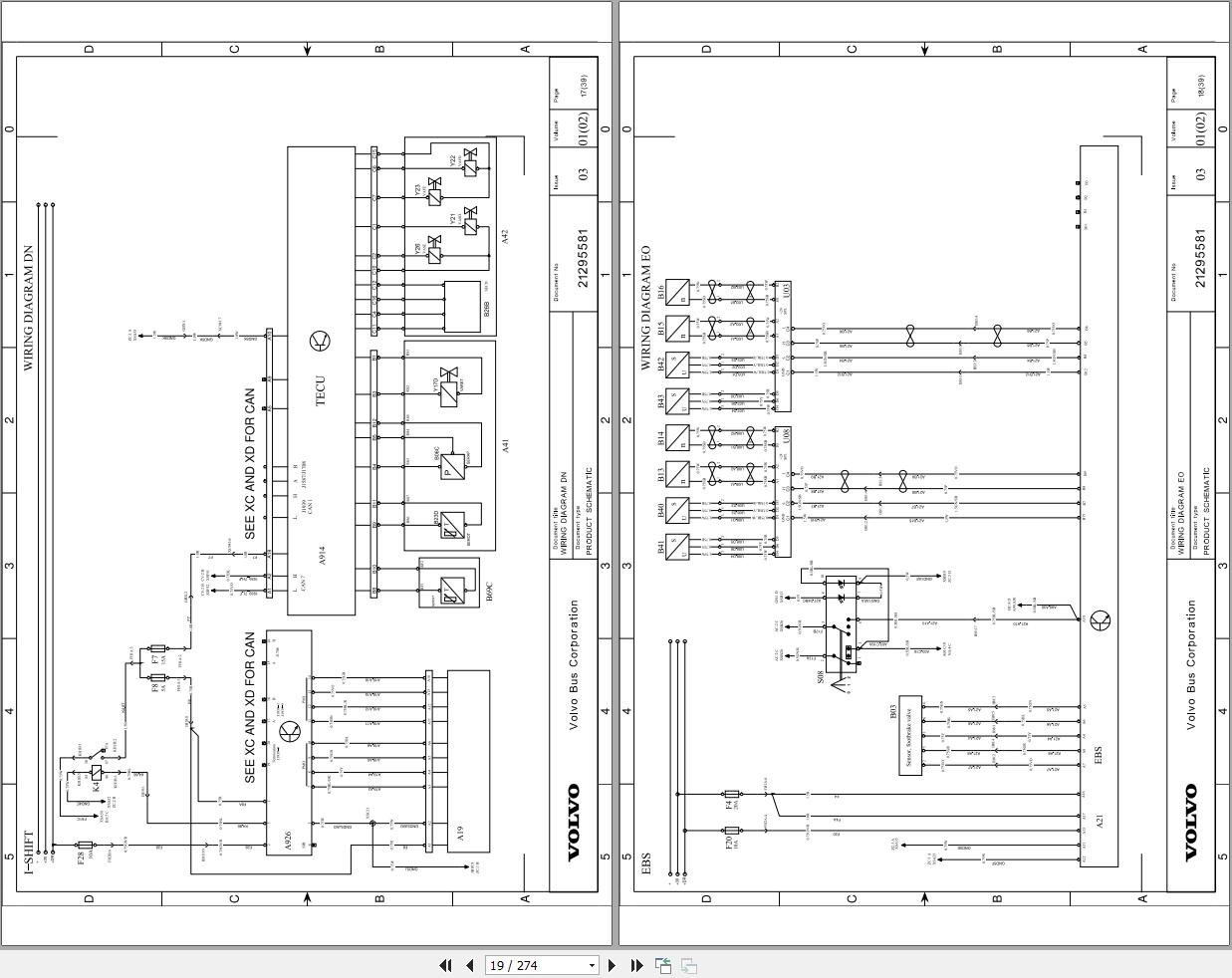
Document: Wiring Diagram
Pages: 274 Pages
The Bookmarks of Volvo B5LH Bus Wiring Diagram:
1-Volvo B5LH Service Manual
1-Volvo B5LH Specs
900A Fault during SAE J1939 transmission
900B SAE J1939 Control link, interruption
900F Tachograph buttons not working
9010 Display fault
9051 Chart missing for driver 1
9052 Chart missing for driver 2
9053 Time indicator fault
9060 Drawer
9061-9062-9063 Internal recording error
9064 Tachograph chart drive circuit
9430 Output B7
17702-2 Batteries, charging
25865-2 AdBlue hose, electrical heated, replace
35325-2 Tail lamp frame, replace
77361-3 Trailing wheel hub, remove
1158957 HOSE CLAMP PLIERS
88800052 FIXTURE
A00C Internal communication fault
A050 Trip without chart for driver 1
A400 Power loss
A423 Error during sensor communication
A822 Error in the sensor key serial number signal
Abbreviations
AC 203 R-115 and -180 alternators (115A and 180A), dismantling
AC 203-115 and -180 Alternators (115A and 180A), reassembly
Alternator
Analysis of engine oil
Battery, alternator
Battery, warranty claim handling, additional information
Brake fluid
Charging circuit fault tracing
Chemical products catalogue
Consumables
Coolant
Diodes and heat sinks
Electrical data
Engine oil
Functional test in the bus of the charging system
Grease
Handling lubricants
Instrument, display
Instrument, gauge
Instrument, lamps
Instrument, system description
Lubricants, fluids and oil analysis
Oils
Recommendations for Volvo Trucks
Speedometer sensor
Storage
Tachograph, fault code table
Tachograph, fault codes, general information
Tachograph, signal descriptions
Tachograph
Testing charging circuit
Testing charging regulator
Tightening torque 1
Tightening torque
Tolerances
Transmission oil
Undercarriage protection maintenance procedure
Viscosity
[Other Product]


