Volvo EC45 Service Repair Manual
Data Size: 62.46 MB
File Type: PDF
Language: English
Manufacturer: Volvo
Applicable Machine: Excavator
Document: Service Repair Manual, Electrical Wiring Diagram, Hydraulic Diagram
Machine Model: Volvo EC45 Excavator
Page: 4206 Pages
List Contents:
1 Volvo EC45
2 Volvo EC45
Description
Applying the brake
Assembling pistons and guide sleeves
Assembling the brake discs
Assembling the cylinder block
Assembling the oil distributor seals
Assembling the radial seals
Assembling the roller bearings
Auxiliary pressure block Figure 1
Auxiliary pressure block
Battery, description
Battery, location and removal
Boom cabin weather roof Figure 1
Boom cabin weather roof Figure 2
Boom cabin weather roof Figure 3
Boom cabin weather roof Figure 4
Boom cabin weather roof Figure 5
Boom cabin weather roof Figure 6
Boom cabin weather roof
Brake valve (counter balance valve) Figure 1
Brake valve (counter balance valve)
Cabin door, description Figure 1
Cabin door, description Figure 2
Cabin door, description
Change engine oil, replace filter
Changing the hydraulic oil Figure 1
Changing the hydraulic oil Figure 2
Changing the hydraulic oil Figure 3
Changing the hydraulic oil
Cleanliness, braking and hydraulic system
Colour codes
Complete wiring diagram (part 1)
Complete wiring diagram (part 2)
Control valve
Description fuel
Description
Design of axial piston motor Figure 1
Design of axial piston motor
Design of travel motor
Designations of electrical components
Diagnostics
Disassembling pistons and guide sleeves Figure 1
Disassembling pistons and guide sleeves
Disassembling the roller bearings
Electric system, trouble shooting
Electric welding
Electrical components (hydraulic system side part 1) Figure 1
Electrical components (hydraulic system side part 1)
Electrical components (hydraulic system side part 2) Figure 1
Electrical components (hydraulic system side part 2)
Electrical system, description
Electronic multi-function switch PUMA (ECU1) Figure 1
Electronic multi-function switch PUMA (ECU1)
Engine air filter unit Figure 1
Engine air filter unit
Engine trouble shooting
error codes
Fuses for cabin equipment
Fuses for machine equipment
General description frame
General Figure 1
General
Hose rupture valve on boom cylinder Figure 1
Hose rupture valve on boom cylinder Figure 2
Hose rupture valve on boom cylinder
Hose rupture valve on dipper Figure 1
Hose rupture valve on dipper Figure 2
Hose rupture valve on dipper
Hydraulic components, storage and transport
Hydraulic motor – slewing of superstructure Figure 1
Hydraulic motor – slewing of superstructure
Hydraulic oil, description
Hydraulic oil, storage and handling
Hydraulic safety solenoid valve Figure 1
Hydraulic safety solenoid valve
Hydraulic system, description Figure 1
Hydraulic system, description
Hydraulic system, replacement of hydraulic filter element Figure 1
Hydraulic system, replacement of hydraulic filter element Figure 2
Hydraulic system, replacement of hydraulic filter element Figure 3
Hydraulic system, replacement of hydraulic filter element
Jump starting
Load capacity tables EC 45 Figure 1
Load capacity tables EC 45
Lubricating system, description
Maintenance instructions
Position of components Figure 1
Position of components
Precautions when handling plug connectors Figure 1
Precautions when handling plug connectors Figure 2
Precautions when handling plug connectors Figure 3
Precautions when handling plug connectors
Precautions
Pressure regulator (hydraulic control elements) Figure 1
Pressure regulator (hydraulic control elements) Figure 2
Pressure regulator (hydraulic control elements)
Pressure relief valves
Recharging of batteries
Recommended lubricants
Relay
Releasing the slewing brake
Removing the brake discs
Removing the cylinder block Figure 1
Removing the cylinder block
Removing the oil distributor seals Figure 1
Removing the oil distributor seals
Removing the radial seals
Repairing hydraulic system
Schematic
Service and maintenance
Swivel joint Figure 1
Swivel joint
Tests before disassembly
Travel gear, oil change Figure 1
Travel gear, oil change
Troubleshooting chart
Valve block for slewing gear
VOLVO standard tightening torques
Way valve, control valve Figure 1
Way valve, control valve
Windscreen
Working headlights and main headlights, description
Working principle of the travel system
Diagrams
Balancing valve (offset cylinder) Figure 1
Balancing valve (offset cylinder) Test and adjustment procedure
Balancing valve (offset cylinder)
Hose rupture valve on boom cylinder Figure 1
Hose rupture valve on boom cylinder
Hydraulic circuit for bucket Figure 1
Hydraulic circuit for bucket
Hydraulic circuit, boom Figure 1
Hydraulic circuit, boom
Hydraulic circuit, dipper arm Figure 1
Hydraulic circuit, dipper arm
Hydraulic circuit, dozer blade Figure 1
Hydraulic circuit, dozer blade
Hydraulic circuit, slewing gear offset Figure 1
Hydraulic circuit, slewing gear offset
Hydraulic circuit, travel system Figure 1
Hydraulic circuit, travel system
Hydraulic diagram EC 45, complete Figure 1
Hydraulic diagram EC 45, complete
Hydraulic system, auxiliary pressure block Figure 1
Hydraulic system, auxiliary pressure block
Hydraulic system, function diagram Figure 1
Hydraulic system, function diagram
Servo hydraulics Figure 1
Servo hydraulics
Solenoid valve for hydraulic working unit Figure 1
Solenoid valve for hydraulic working unit
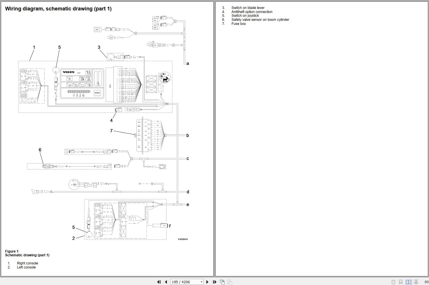
Wiring diagram, schematic drawing (part 1) Figure 1
Wiring diagram, schematic drawing (part 1)
Wiring diagram, schematic drawing (part 2) Figure 1
Wiring diagram, schematic drawing (part 2)
Wiring engine, schematic drawing Figure 1
Wiring engine, schematic drawing
Installation Instruction
CareTrack1
CareTrack2
Hydraulic quick coupling single acting on 1, 4m arm and tool holder
Hydraulic quick coupling single acting on 1, 4m arm
Hydraulic quick coupling single acting on 1, 7m arm and tool holder
Hydraulic quick coupling single acting on 1, 7m arm
Safety valve on boom cylinder
Safety valves on boom and arm cylinder
Repair
Adjusting the Track Tension
Assemble the generator
Assembling the cabin Figure 1
Assembling the cabin Figure 2
Assembling the cabin Figure 3
Assembling the cabin Figure 4
Assembling the cabin
Assembling the crawler track
Assembling the fuel injection line
Assembling the gear motor
Assembling the guide sprocket
Assembling the guide sprocket1
Assembling the hydraulic motor
Assembling the rubber track
Assembling the superstructure
Assembling the top roller
Assembling the track roller
Assembling the travel motor
Assembling the valve block Figure 1
Assembling the valve block
Bleeding the fuel system
Changing the fuel filter Figure 1
Changing the fuel filter Figure 2
Changing the fuel filter
Changing the V-belt
Checking and adjusting the breaker (volumetric capacity)
Checking and adjusting the dipper arm cylinder (volumetric capacity)
Checking and adjusting the FR pressure control valve Figure 1
Checking and adjusting the FR pressure control valve Figure 2
Checking and adjusting the FR pressure control valve
Checking and adjusting the LS pressure relief valve
Checking and adjusting the pilot pressure Figure 1
Checking and adjusting the pilot pressure Figure 2
Checking and adjusting the pilot pressure Figure 3
Checking and adjusting the pilot pressure
Checking the hydraulic oil level Figure 1
Checking the hydraulic oil level Figure 2
Checking the hydraulic oil level
Checking the performance characteristics Figure 1
Checking the performance characteristics
Checking the voltage regulation Figure 1
Checking the voltage regulation
Compression pressure inspection
Control valve block for slewing gear, test and adjustment Figure 1
Control valve block for slewing gear, test and adjustment Figure 2
Control valve block for slewing gear, test and adjustment
Cylinder speed
Disassemble the generator Figure 1
Disassemble the generator Figure 2
Disassemble the generator Figure 3
Disassemble the generator Figure 4
Disassemble the generator Figure 5
Disassemble the generator Figure 6
Disassemble the generator Figure 7
Disassemble the generator Figure 8
Disassemble the generator Figure 9
Disassemble the generator Figure 10
Disassemble the generator Figure 11
Disassemble the generator
Disassembling the fuel injection line
Disassembling the fuel pump Figure 1
Disassembling the fuel pump
Disassembling the hydraulic motor Figure 1
Disassembling the hydraulic motor Figure 2
Disassembling the hydraulic motor Figure 3
Disassembling the hydraulic motor Figure 4
Disassembling the hydraulic motor Figure 5
Disassembling the hydraulic motor Figure 6
Disassembling the hydraulic motor Figure 7
Disassembling the hydraulic motor Figure 8
Disassembling the hydraulic motor Figure 9
Disassembling the hydraulic motor Figure 10
Disassembling the hydraulic motor Figure 11
Disassembling the hydraulic motor Figure 12
Disassembling the hydraulic motor Figure 13
Disassembling the hydraulic motor Figure 14
Disassembling the hydraulic motor Figure 15
Disassembling the hydraulic motor Figure 16
Disassembling the hydraulic motor Figure 17
Disassembling the hydraulic motor Figure 18
Disassembling the hydraulic motor Figure 19
Disassembling the hydraulic motor Figure 20
Disassembling the hydraulic motor Figure 21
Disassembling the hydraulic motor Figure 22
Disassembling the hydraulic motor Figure 23
Disassembling the hydraulic motor Figure 24
Disassembling the hydraulic motor Figure 25
Disassembling the hydraulic motor Figure 26
Disassembling the hydraulic motor Figure 27
Disassembling the hydraulic motor Figure 28
Disassembling the hydraulic motor Figure 29
Disassembling the hydraulic motor Figure 30
Disassembling the hydraulic motor Figure 31
Disassembling the hydraulic motor Figure 32
Disassembling the hydraulic motor Figure 33
Disassembling the hydraulic motor Figure 34
Disassembling the hydraulic motor Figure 35
Disassembling the hydraulic motor Figure 36
Disassembling the hydraulic motor Figure 37
Disassembling the hydraulic motor
Dismantling the valve block Figure 1
Dismantling the valve block
Foreword
Hose rupture valve on boom cylinder Test and adjustment procedure Figure 1
Hose rupture valve on boom cylinder Test and adjustment procedure Figure 2
Hose rupture valve on boom cylinder Test and adjustment procedure Figure 3
Hose rupture valve on boom cylinder Test and adjustment procedure
Hose rupture valve on boom cylinder, leak test Figure 1
Hose rupture valve on boom cylinder, leak test
Hose rupture valve on dipper arm cylinder, leakage test Figure 1
Hose rupture valve on dipper arm cylinder, leakage test
Hydraulic lock, hose rupture valve
Hydraulic motor 1, travel gear Figure 1
Hydraulic motor 1, travel gear
Idle speed, inspection and adjustment
Inspection
Installing the fuel pump
Installing the generator Figure 1
Installing the generator Figure 2
Installing the generator
Installing the hydraulic pump Figure 1
Installing the hydraulic pump Figure 2
Installing the hydraulic pump Figure 3
Installing the hydraulic pump
Installing the oil filter
Installing the oil pressure switch
Installing the valve block Figure 1
Installing the valve block Figure 2
Installing the valve block
Measuring the play of the slewing bearing
Oil cooling system
Removing the cabin
Removing the coolant pump Figure 1
Removing the coolant pump Figure 2
Removing the coolant pump Figure 3
Removing the coolant pump Figure 4
Removing the coolant pump Figure 5
Removing the coolant pump Figure 6
Removing the coolant pump
Removing the crawler tracks
Removing the gear motor
Removing the generator Figure 1
Removing the generator
Removing the guide sprocket
Removing the guide sprocket1
Removing the hydraulic oil pump Figure 1
Removing the hydraulic oil pump Figure 2
Removing the hydraulic oil pump Figure 3
Removing the hydraulic oil pump
Removing the oil cooler
Removing the oil filter
Removing the oil pressure switch
Removing the rubber track
Removing the superstructure
Removing the thermostat housing
Removing the top roller
Removing the track roller
Removing the travel motor
Removing the valve block Figure 1
Removing the valve block
Slewing overtravel
Sprocket, measurement of wear
Stand-by pressure Figure 1
Stand-by pressure
Starter motor, disassembly and assembly
Swing speed
Tensioning the V-belt
Tests and adjustments of the power control Figure 1
Tests and adjustments of the power control Figure 2
Tests and adjustments of the power control Figure 3
Tests and adjustments of the power control Figure 4
Tests and adjustments of the power control
Travel gear, dismantling
Travel gear, mounting
Travel motor, exploded view Figure 1
Travel motor, exploded view
Travel Speed Figure 1
Travel Speed Figure 2
Travel Speed
Valves, adjusting
Safety
General precautions
Move and operate machine safely
Preparations for work
Safety concerns everybody!
Safety measures during operation
Service Bulletins
Boom
Cab parts, change
Check valve inside MCV
Cylinder, improvement
Fuel sampling, method
Internal leakage dozer blade, tolerance
Maintenance of Stored Machines
New coolant
New ECU (PUMA) software
New Puma 3
New slew motor brake kit
New TechTool VCADS Pro interface
Option anti-theft, instruction
Portable refillable O-ring kits
Puma programming kit USB port
PUMA System, trouble shooting guide
Relief valve, change
Reporting of product misuse & near-miss report
Slew motor improvement
Volvo Product incident accident report & Interview Form
Special Tools, Misc
01 Time Guide Current generation
11 Time Guide Previous generation
21 Time Guide Old generation
35 GRD G700B LabourTimeGuide
40 RM Compaction Time guide old version
41 RM Compaction ABG Time Guide
42 RM Paving Systems ABG Time Guide
Special tool catalog
Special Tools Recommendations
Specifications
Basic objects of examination
Battery, specification
Cabin, specification
Cabin, tightening torques
Caution sign - Diesel engine starting procedure
Caution sign - Emergency exit
Caution sign - Lashing
Caution sign - Lifting the machine
Caution sign - Operation and maintenance
Caution sign - Track tension
COOLING SYSTEM
Drive gear, tightening torque
Electrical system, technical data
Electrical system
ENGINE
Fuel, lubricant and filling capacities
Fuel, lubricant and filling capacities1
Fuels, lubricants and filling capacities (litres)
Hydraulic motor 1 - travel system
Hydraulic oil tank, filling capacity
Hydraulic system EC 45
Load capacity tables EC 45
Lubrication system, specification
Machine identification
Main dimensions EC 45 Figure 1
Main dimensions EC 45
Mechanical transmission - track gearbox
Miscellaneous
Plugs with tapered thread
Power transmission
Reach EC 45
Reach of the working attachment EC 45
Slewing ring, tightening torques
Slewing ring, tightening torques1
Specification, engine
Specification, filling capacities
Specification, weight
Strength class 8.8 Metric coarse and fine threads
Strength class 10.9 Metric coarse and fine threads
Technical data
Technical data1
Test and adjustment values EC 45
Tightening torques, engine
Tightening torques, engine1
Track pad, tightening torque
Track roller, tightening torque
Track supporting idler, tightening torque
UNC-threads, coarse pitch
Valve timing
Warning and information decals
Warning sign - Open engine hood only with engine stopped
Warning sign - Safety distance from the movement area
Warning sign - Safety distance from the work area
Working headlights and main headlights, specification


