Volvo EC480E HR Service Repair Manual
Data Size: 191.58 MB
File Type: PDF
Language: English
Manufacturer: Volvo
Applicable Machine: Excavator
Document: Service Repair Manual, Electrical Wiring Diagram, Hydraulic Diagram
Machine Model: Volvo EC480E HR Excavator
Page: 4308 Pages
List Contents:
1. EC480E HR
Repair
2 stage port relief valve, adjustment
Accumulator, replacing
ACM (After treatment control module), replacing, non-Programd
ACM (After treatment control module), replacing, pre-Programd
Actuator, variable turbocharger, replacing
AdBlue DEF hoses, replacing
AdBlue DEF nozzle, replacing
AdBlue DEF pump unit, components, replacing
AdBlue DEF pump unit, replacing
AdBlue DEF pump, replacing
AdBlue DEF quality, checking
AdBlue DEF tank, breather filter, replacing
AdBlue DEF tank, replacing
AdBlue DEF tank, tank armature, replacing
AdBlue DEF, draining
Additional counterweight, description
Additional counterweight, installing
Additional counterweight, removing
Aftertreatment fuel dosing unit, replacing
Aftertreatment fuel nozzle, cleaning
Aftertreatment fuel nozzle, replacing
Air conditioner main filter, cleaning
Air conditioner main filter, replacing
Air conditioning unit, maintenance
Air conditioning unit, refrigerant check and recharging
Air drier cartridge, replacing
Air in fuel system, checking
Air mix door actuator, replacing
Alternator, replacing incl function check
Antenna, replacing
Backrest, replacing
Base boom modular joint cylinder pin, replacing
Base boom modular joint cylinder, replacing
Batteries, replacing
Battery, charging
Battery, checking
Boom cylinder protecting guard, installation
Boom cylinder protecting guard, removal
Bottom roller, measurement of wear
Bottom roller, replacing one
Bottom roller, replacing seal
Breather, replacing
Bucket cylinder bushing lever-link, replacing
Bucket cylinder bushing on dipper arm, changing
Bucket cylinder protecting guard, installation
Bucket cylinder protecting guard, removal
Bucket cylinder, replacing
Cab door, covers, hinges, joints and locks, lubricating
Cab filter, replacing
Cab prefilter, cleaning
Cab prefilter, replacing
Cab, installing
Cab, removing
Camshaft setting, checking
Camshaft, replacing
Carbon dioxide in coolant system, checking
Carbon dioxide in fuel system, check
CareTrack antenna, replacing
CareTrack backup battery, replacing
CareTrack battery, replacing
CCM, changing non-Programd ECU
CCM, changing pre-Programd ECU
Center passage, assembly
Center passage, disassembly
Center passage, replacing seal kit
Center passage, replacing
Coasting left and right swing
Component locations engine
Compression test
Compressor, replacing magnetic clutch (compressor removed)
Compressor, replacing
Condenser, replacing incl draining and filling
Connecting rod yoke, replacing
Control lockout lever switch, replacing
Control valve, replacing
Coolant freezing point, checking
Coolant, changing
Coolant, checking anti-freeze resistance
Counterweight, description
Counterweight, fitting
Counterweight, removing
Crankcase ventilation separator, replacing
Creeping of hydraulic cylinder
Cylinder speed
Cylinder, disassembly and assembly
DC–DC converter, description
Demolition control valve, replacing
Demolition dipper arm cylinder, replacing
Diesel particulate filter, check and clean
Diesel particulate filter, checking and cleaning
Digging unit, maintenance
Dipper arm connecting rod, replacing
Dipper arm cylinder bushing on boom, replacing
Dipper arm cylinder bushing on dipper arm, replacing
Dipper arm cylinder, replacing
Dipper arm, replacing
Door window, replacing
Door, replacing
Earth lead to battery, replacing
ECM (Engine control module), replacing non-Programd
ECM (Engine control module), replacing pre-Programd
EGR cooler, cleaning
EGR cooler, pressure test
EGR cooler, replacing
EGR pressure sensor, replacing
EGR valve, replacing
EGR venturi tube, cleaning
EGR Venturi tube, replacing
Electric pedal control on X1 (on off), replacing
Electric pedal control on X1 (proportional), replacing
Electrical battery disconnect switch, replacing
Engine air cleaner primary filter, replacing
Engine air cleaner secondary filter, replacing
Engine belt condition, checking
Engine belts, replacing
Engine oil and filter, changing
Engine oil pressure sensor, replacing
Engine rotation speed sensor (camshaft), replacing
Engine rotation speed sensor (crank shaft), replacing
Engine temperature sensor, replacing
Engine wire harness, replacing
Engine, installing
Engine, removing
E-tools, NET 8940-00290 Swing motor guide pin
Evaporator, replacing incl draining and filling
Exhaust aftertreatment system fuel flow, checking
Exhaust pipe, flexible tube, replacing
Expansion valve, replacing incl draining and filling
Extensible undercarriage cylinder, replacing
Fan motor, assembly
Fan motor, disassembly
Fan motor, replacing
Feed pump, checking feed pressure
Front idler, installing
Front idler, removing
Front idler, replacing one
Fuel filter, replacing
Fuel level sender, replacing
Fuel system, bleeding
Fuel tank breather filter, replacing
Full track guard, replacing
General, precautions
GPMECU1, changing non-Programd ECU
GPMECU1, changing pre-Programd ECU
Hammer hydraulic option, installing new
Heater core, replacing
High pressure air system, pressure, checking
HMICU, changing non-Programd ECU
HMICU, changing pre-Programd ECU
Horn, replacing
Hour meter, replacing'
Hydraulic oil drain filter, replacing
Hydraulic oil level, checking
Hydraulic oil return filter, replacing
Hydraulic oil servo filter, replacing
Hydraulic oil suction strainer, cleaning
Hydraulic oil tank breather filter, replacing
Hydraulic oil tank, vacuum-pumping, connecting and disconnecting pump
Hydraulic oil temperature sensor, replacing
Hydraulic oil, changing
Hydraulic pump (removed), changing shaft seal
Hydraulic pump, replacing
Hydraulic quickfit, adjustment
Hydraulic return filter on X1 option circuit, replacing
Idler, assembly
Idler, disassembly
Idler, measurement of wear
Ignition switch, replacing
Injector sleeves, replacing
Injectors, replacing all
Inlet and exhaust system, component location
Inlet throttle, replacing
Instrument panel, replacing (left)
Instrument panel, replacing (right)
Intake actuator, replacing
Intercooler, replacing
Line rupture valve (arm), assembly
Line rupture valve (arm), disassembly
Line rupture valve (boom), air breathing
Line rupture valve (boom), assembly
Line rupture valve (boom), disassembly
Line rupture valve (boom), troubleshooting'
Longitudinal adjustment cable, replacing
Longitudinal suspension cable, replacing
Lower boom cylinder bushing, replacing
Lubrication oil consumption, checking
Lubrication oil pressure, checking with pressure gauge
Lubrication, every 50 hours
Machine view
Main pressure relief valve, replacing
Main relief valve, adjustment
Maintenance service, every 10 hours
Maintenance service, every 50 hours
Maintenance service, every 250 hours
Maintenance service, every 500 hours
Maintenance service, every 1000 hours
Maintenance service, every 2000 hours
Maintenance service, every 4000 hours
Maintenance service, every 4500 hours
Maintenance service, every 6000 hours
Maintenance service, first 500 hours
Maintenance service, general
Maintenance
MATRIS and Tech Tool, reading
Measuring condition
Measuring of swing bearing clearance
Middle dipper arm cylinder, replacing
Mode (foot) actuator, replacing
Muffler, replacing
NOx sensor, replacing
Oil cooler fan motor, replacing
Oil cooler line bypass valve (check valve), replacing
Oil cooler, replacing
Oil level gauge, replacing
Oil level sensor, changing
Oil-bath air cleaner reservoir filter insert, cleaning
Oil-bath air cleaner reservoir oil, changing
Oil-bath air cleaner reservoir oil, checking
Port relief valve pressure, checking and adjusting
Pre-heating relay, replacing
Proportional solenoid valve (power shift), replacing
Proportional solenoid valve, measuring and adjustment
Pump gearbox coupling assembly, replacing
Pump gearbox flange, replacing
Pump regulator, replacing
Pump, maintenance standard
Quickfit, replacing 1
Quickfit, replacing
Radiator and hydraulic oil cooler, cleaning
Radiator, replacing
Radio, replacing
Rear window, replacing
Rear-view mirror, changing
Receiver, replacing incl draining and filling
Recoil spring cylinder seal kit, replacing
Regulator, maintenance
Remote control valve (Lever), assembly
Remote control valve (Lever), disassembly
Remote control valve (Lever), maintenance standard
Remote control valve (lever), replacing
Remote control valve (pedal), assembly
Remote control valve (pedal), disassembly
Remote control valve (pedal), maintenance standard
Remote control valve (pedal), replacing
Removable counterweight cylinder, description
Removable counterweight cylinder, specifications
Removable counterweight, installing
Removable counterweight, removing
Retractable track, installing
Retractable track, removing
Ring gear grease pipe, replacing
Rocker arms, replacing
Rotator valve, adjustment
Rupture valve, replacing (boom cylinder)
Rupture valve, replacing (dipper arm cylinder)
SCR system, dosing test
Seat cushion, replacing
Seat heater, checking
Seat support, replacing
Seat, replacing
Servo hydraulic pressure, adjustment
Servo pump, assembly
Servo pump, disassembly
Servo pump, parts inspection
Servo pump, replacing
Side window, replacing
Solenoid valve, disassembly and assembly
Solenoid valve, inspection
Solenoid valve, replacing
Speaker, replacing
Spring package, assembly
Spring package, disassembly
Sprocket, installation
Sprocket, measurement of wear
Sprocket, removal
Sprocket, replacing one
Sprocket, replacing one1 1
Starter motor, replacing
Starter motor, tests
Straight traveling performance
Superstructure, installing
Superstructure, removing
Support information
Swing bath grease, checking
Swing gearbox oil level, checking
Swing gearbox oil, changing
Swing gearbox removed, replacing seal
Swing gearbox, assembly
Swing gearbox, disassembly
Swing gearbox, maintenance standard
Swing gearbox, replacing
Swing limitation sensor, adjusting
Swing motor relief valve, replacing
Swing motor removed, replacing seal
Swing motor, assembly
Swing motor, disassembly
Swing motor, maintenance standard
Swing motor, replacing
Swing ring gear bearing, lubricating
Swing ring gear inner seal, replacing
Swing ring gear outer seal, replacing
Swing ring gear, replacing
Swing speed 1
Swing speed
Swing unit, replacing
Test running and checking
Tool box assembly, replacing
Tools & equipment
Top roller, measurement of wear
Top roller, replacing one
Total moment indicator (TMI), replacing
Track chain assembly, installing
Track chain assembly, removing
Track chain, measurement of wear
Track gearbox oil level, checking
Track gearbox oil, changing
Track gearbox, assembly 1
Track gearbox, assembly
Track gearbox, disassembly
Track gearbox, disassembly1`
Track gearbox, maintenance standard
Track gearbox, replacing cover
Track gearbox, replacing
Track guard, replacing one
Track link, dimension
Track links, replacing
Track motor relief valve, replacing
Track motor, assembly 1
Track motor, assembly
Track motor, disassembly 1
Track motor, disassembly
Track motor, maintenance standard
Track motor, replacing
Track recoil spring (tensioner) assembly, replacing
Track running speed
Track shoe bolts, checking
Track shoe, replacing one
Track tension and condition, checking
Track unit, replacing
Track, adjusting track sag
Travel Speed
Turbocharger, replacing
Unit injectors, adjusting pretension
Upper boom cylinder bushing, replacing'
Valves, adjusting 1
Valves, adjusting
Vent actuator, replacing
Venturi tube, checking
Voltage converter, replacing
Water separator filter, replacing
W-ECU, replacing, non-Programd
W-ECU, replacing, pre-Programd
Windscreen flusher pump, replacing
Windscreen wiper front, replacing motor
Windscreen wiper, replacing switch
Windscreen, replacing
Work lighting, replacing one head lamp assy
Descriptions
2 stage port relief valve, description
2 stage port relief valve, disassembly and assembly
3 way selector valve, description
Air breather, description
Air conditioning unit, description
Air distribution, description
Alternator, description
Alternator, test
Arm conflux check valve, disassembly
Arm parallel conflux changeover valve, disassembly
Arm regenerating valve, description
Attachment quick coupler
Auto Idle
Automatic engine shut-down
Automatic lubrication system, description
Auxiliary heater, description
Auxiliary heater, principles
Auxiliary start
Base boom cylinder, description
Base boom modular joint cylinder, description
Battery charging capacity, checking
Battery, description
Boom and arm holding valve (Boom-1, Arm-1), description
Boom and arm holding valve (Boom-1, Arm-1), disassembly
Boom boost check valve, disassembly
Boom float position, description
Boost control, description
Bottom roller, description
Bucket cylinder, description
Cab suspension, description
CareTrack W-ECU, description
CareTrack with anti-theft
Center bypass valve, disassembly and assembly
Center passage, description
Central lubrication system, description
Change capacities
Charging, description
Check valve (for arm parallel conflux, slew priority), disassembly
Check valve, description
Connectors, overview
Control lockout lever switch, description
Control pattern selector valve, description
Control units, software functions
Control valve, part inspection
Cooling fan control
Cooling system, description
Cover assembly (for preventing Boom-1 spool rotation), disassembly
Crankcase ventilation, description
Crusher cylinder, description
Cylinder, description
Cylinder, troubleshooting
Demolition control valve, description
Demolition dipper arm cylinder, description
Demolition machine, description
Digging unit, description
Dipper arm cylinder, description
Dipper arm, description
Driver's seat, description
ECO mode, description
EGR actuator, specification
Electrical system, special instructions for servicing, electrical components, alternator and charging regulator
Electrical system, special instructions for servicing, electrical components, batteries
Electrical system, special instructions for servicing, electronic components
Electrical system
Electro hydraulic pump control, description
Electronic control system, description
Engine limp home switch, description
Engine start
Engine stops
Engine system
Engine, description
Exhaust Aftertreatment System, component location
Exhaust Aftertreatment System, description
Exhaust gas recirculation (EGR), component location
Exhaust Gas Recirculation (EGR), description
Extensible undercarriage cylinder, description
Fan motor, description
Fan motor, troubleshooting
Foreword additional Service manual Demolition machine
Frame and track unit, description
Fuel system, component location
Fuel system, description
Function description transm
General purpose machine electronic control unit GPMECU, function description
Grading and lifting control, description
Hammer return filter, description
Heating system, description
Human machine interface control unit HMICU, function description
HVAC system
Hydraulic components, description
Hydraulic cylinders, dieseling
Hydraulic diagram, ports
Hydraulic oil cooler, description
Hydraulic oil cooling system, description
Hydraulic oil tank, description
Hydraulic pump coupling, description
Hydraulic pump, description
Hydraulic quickfit, description
Hydraulic system, position of main components
Hydraulic system
Idler, description
Ignition switch, description and operation
Inlet and exhaust system, description
Instruments and controls, front instrument panel
Instruments and controls, left instrument panel
Instruments and controls, overview
Instruments and controls, rear instrument panel
Instruments and controls, right instrument panel
Intermittent wiper and washer
Keypad, description
Limp home
Line rupture valve (arm), air breathing
Line rupture valve (arm), description
Line rupture valve (boom), description
Line rupture valve pressure, checking and adjusting
Link, description
Lower wiper motor, description
Lubrication system, component locations
Lubrication system, description
Machine view, demolition
Main control valve troubleshooting
Main control valve, description
Main relief valve, description
Main relief valve, disassembly
Make up valve, description
Middle dipper arm cylinder, description
Mode selection, description
MS.Internal.Documents
Option confluence check
Overload warning
Overview
Port relief valve pressure, adjustment (when installing or dismantling the line rupture valve)
Port relief valve, description
Power transmission, description
Preheating, description
Pressure accumulator, description
Pressure relief valve, troubleshooting
Product plates
Proportional relief valve, description
Proportional solenoid valve, description
Pump, troubleshooting
Quickfit system, operation
Radio with MP3, description
Radio, description
Regeneration process, description
Regulator, description
Remote control valve (Lever), description
Remote control valve (Lever), troubleshooting
Remote control valve (pedal), description
Remote control valve (pedal), troubleshooting
Reversible cooling fan, description
Rotating beacon, replacing
Rotator (X3 Line option), description
Seat belt
Selection of track shoes
Service mode
Service positions
Service
Servo hydraulic block
Servo pump, description
Shock reducing valve, description
Shuttle valve block, description
Software parameters, description
Solenoid valve, description
Solenoid valve, troubleshooting
Spring package, assembly dimension
Starter switch, testing
Starting operation
Stop valve
Straight travel pedal, description
Swing gearbox, description
Swing motor, description
Swing ring gear inner seal, replacing
Swing ring gear, description
System voltage
Tightening torque, specifications
Top roller, description
Total moment indicator (TMI), description
Track chain, description
Track gearbox, description
Track guards
Track motor, description
Travel alarm, replacing
Travel alarm
Travel Speed
Undercarriage, description
Upper wiper motor, description
Welding on the machine
Window limit switch, description
Windows, general
Windscreen wiper, description
X1 control, description
X1 Line, description
X3 control, description
Diagrams
Explanations to hydraulic diagram
Hydraulic diagram, demolition equipment 4
Hydraulic diagram, demolition equipment
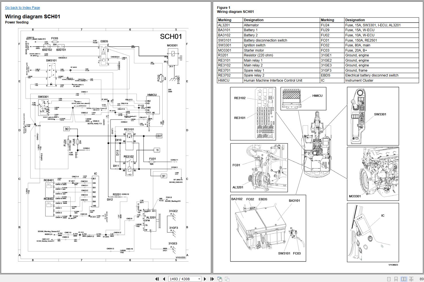
Wiring diagram SCH01
Wiring diagram SCH01-1
Wiring diagram SCH02
Wiring diagram SCH02-1
Wiring diagram SCH03
Wiring diagram SCH03-1
Wiring diagram SCH04
Wiring diagram SCH05
Wiring diagram SCH05-1
Wiring diagram SCH07
Wiring diagram SCH08
Wiring diagram SCH10'
Wiring diagram SCH11
Wiring diagram SCH12
Wiring diagram SCH13
Wiring diagram SCH14
Wiring diagram SCH15
Wiring diagram SCH16
Wiring diagram SCH17
Wiring diagram SCH17-1
Wiring diagram SCH18
Wiring diagram SCH20
Wiring diagram SCH22
Wiring diagram SCH30
Wiring diagram SCH31
Wiring diagram SCH32
Wiring diagram SCH33
Service Bulletins
CareTrack Telematics system
CareTrack, new software version 2008w6
Check method on engine oil consumption
DEF AdBlue AUS32 sampling, method
ECU, functional check
Fuel sampling, method
Hydraulic hose assembly leakage handling
Hydraulic system flushing method
Machine model
Modification of CareTrack wire harness
New product 1
New product
Oil sampling, method
Oil sampling, sampling points
Recommendations for Oil Sampling Intervals
Reporting of product misuse & near-miss report
Reports
Routines for reporting cracks on Boom and Arm
Special tool catalog
General
Index
Hooks
1. Enviroment and Safety equipment
2. Measuring equipment
3. Tightening and Loosening tools
4. Lifting equipment
5. Pullers and Pressing equipment
6. Drifts
7. Guide pins and Guide sleeves
8. Pliers
9. Fixtures
10. Tech Tool
11. Spare parts
Specifications
AdBlue DEF
Air conditioning unit, specifications
Alternator, specifications
Automatic lubrication system, specifications
Auxiliary heater, specifications
Base boom cylinder, specifications
Base boom modular joint cylinder, specifications
Base boom, specifications
Battery, specifications
Boom cylinder protecting guard
Bucket cylinder protecting guard torques
Cab, weight
Center passage, specifications
Control lockout lever switch, specifications
Control pattern selector valve, specifications
Coolant with freezing and corrosion protection
Coolant
Cooling system, specifications
Cooling system, tightening torques
Counterweight, tightening torques
Crusher cylinder, specifications
DC–DC converter, specifications
Demolition boom, specifications
Demolition control valve, specifications
Demolition dipper arm cylinder, specifications
Demolition dipper arm line rupture valve, specifications
Demolition dipper arm, specifications
Digging boom, specifications
Dipper arm cylinder, specifications
Dipper arm, specifications
Driver's seat, specifications
EGR system, tightening torques
Electric horn, specifications
Electrical system, specifications
Engine - Pump control, specification
Engine limp home switch, specifications
Engine oil
Engine, specification'
Engine, tightening torques
Extensible undercarriage cylinder, specifications
Frame and track unit, specifications
Fuel system, specifications
Fuel
Grease
Hammer return filter, specifications
Handrail, tightening torque
High pressure water, specifications
Hydraulic oil cooling system, specifications
Hydraulic oil tank, specifications
Hydraulic oil
Hydraulic pump, specifications
Ignition switch, specifications
Inlet and exhaust system, specification
Inlet and exhaust system, tightening torques
Line rupture valve (arm), specifications
Line rupture valve (boom), specifications
Lower wiper motor, specifications
Lubrication system, specifications
Lubrication system, tightening torques
Machine weight, specifications
Main control valve, port size and tightening torque
Main control valve, specifications
Measurement conversion tables
Middle dipper arm cylinder, specifications
Middle dipper arm, specifications
Preheating, specifications
Proportional solenoid valve, specifications
Radio with MP3, specifications
Recommended lubricants
Relay, specifications
Remote control valve (Lever), specifications
Remote control valve (Lever), tightening torque
Remote control valve (pedal), specifications
Rotating beacon, specifications
Servo pump, specifications
Solenoid valve for rotator
Solenoid valve, specifications
Standard tightening torques
Starter motor, specifications
Swing gearbox, specifications
Swing motor, specifications
Swing ring gear, specifications
Tightening torque, fuel system
Tightening torque, specifications frame
Tightening torque, specifications side
Tightening torque, specifications
Tightening torques
Track gearbox, specifications
Track motor, specifications'
Track shoes
Travel alarm, specifications
Undercarriage, description
Undercarriage, tightening torque
Upper wiper motor, specifications
Valve system, specifications
Windscreen flusher pump, specifications
Work lights and extra lights, specifications
X1 electronic proportional pedal, tightening torque
Time Guide Current generation
Time Guide Previous generation


