Yale D847 (MS12X - MS14X - MS16X - MS20X) Service Manual
Size: 65.9 MB
Machine: Forklift
Machine Model: Class 3 D847 (MS12X - MS14X - MS16X - MS20X)
Document: Service Manual, Hydraulic & Electrical Diagrams
List Files:
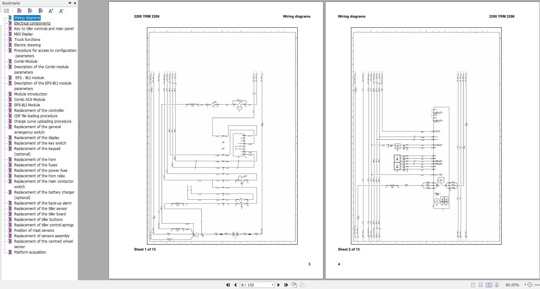
ELECTRICAL SYSTEM (10-2019)
FRAME AND MAIN COMPONENTS (10-2019)
FRONT END (10-2019)
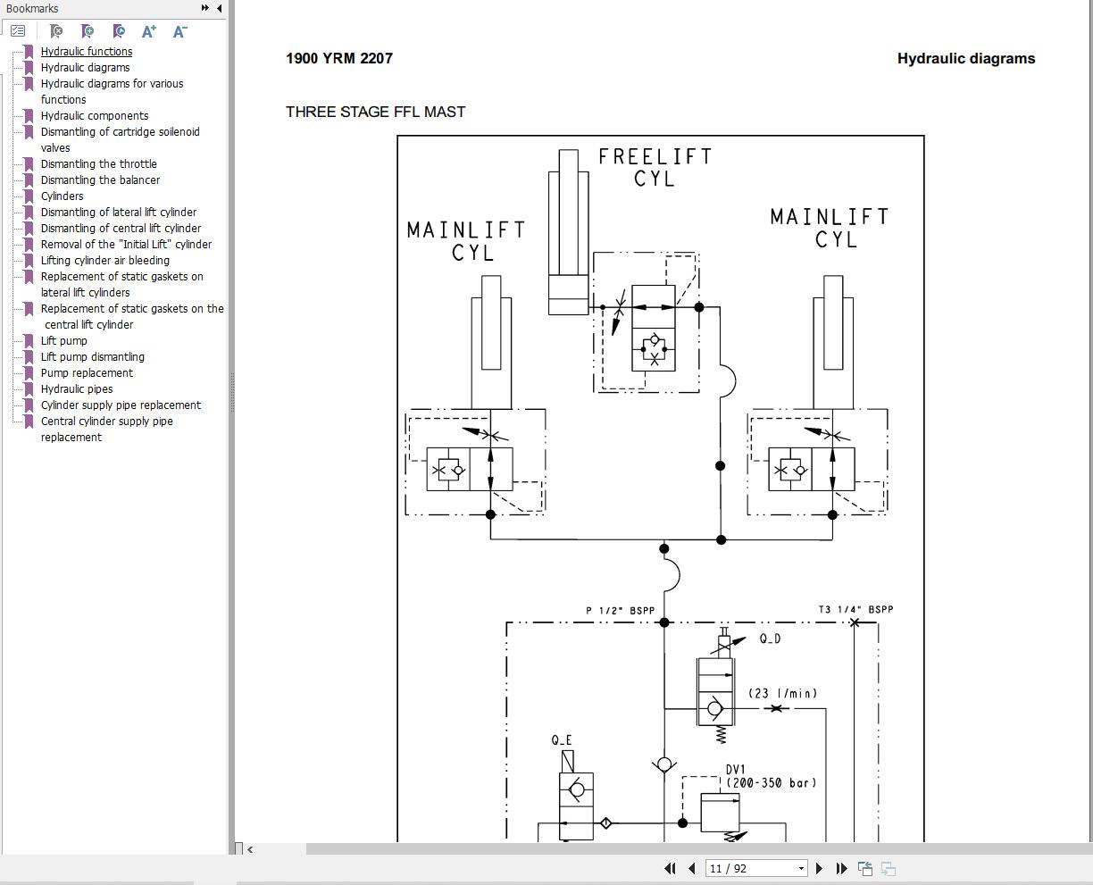
HYDRAULIC (10-2019)
INSTALLATION (10-2019)
MASTER DRIVE UNIT (09-2019)
PERIODIC MAINTENANCE (09-2019)
TROUBLESHOOTING AND ERROR CODES (09-2019)
#CLICK HERE: YALEFORKLIFT FULL MANUAL|ALL BRAND FORKLIFT|SHOPPING GUIDE|CONTACT US|PAYMENT




