Yanmar ViO50-6B Service Manual MMB44ENMA00102
Size: 176.22 MB
Brand: Yanmar
Machine: Excavator
Document: Service Manual, Electrical and Hydraulic Diagrams
Machine Model: Yanmar ViO50-6B Excavator
Part Number: MMB44ENMA00102
Page: 782 Pages
Contents:
COVER
FOREWORD
CONTENTS
1. General Cautions for Maintenance Work
1-1 Correct Work
1-2 Safety Precautions
1-3 Preparations
1-4 Cautions for Disassembly and Reassembly
1-5 Cautions for Removal and Installation of Hydraulic Equipment
1-6 Cautions for Removal and Installation of Hydraulic Piping
1-7 Cautions for Handling Seals
1-8 Correct Installation of Hydraulic Hose
1-9 Specifications of Hydraulic Hose
1-10 Air Release of Hydraulic Equipment
2. Technical Data
2-1 Specifications
2-2 Outline Drawing and Working Area
2-3 Weight List of Main Parts
2-4 Lifting Capacity List
2-5 Specifications for Attachment
2-6 Periodic Inspection and Servicing
2-7 Fuel, Lube Oil and Grease Recommended
2-8 Hydraulic Circuit Schematic
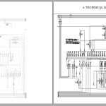
2-9 Wiring Diagram
3. Service Standards
3-1 Machine Performance
3-2 Engine
3-3 Undercarriage
3-4 Controls
3-5 Hydraulic Equipment
3-6 Implement
3-7 List of Tightening Torque
3-8 Pressure Adjustment
4. Engine
4-1 Safety
4-2 Engine
4-3 Fuel System
4-4 Cooling System
4-5 Lubrication System
4-6 Starter Motor
4-7 Alternator
4-8 Electronic Control System
4-9 Electric Wiring
4-10 Failure Diagnosis
4-11 Troubleshooting
5. Electric System
5-1 Electric Equipment of Machine
5-2 Circuit Description of Engine Start and Stop
5-3 Engine ECU (engine controller)
5-4 Battery
5-5 Error Code List
6. Hydraulic System
6-1 Outline
6-2 Circuit Operation
6-3 Hydraulic Pump
6-4 Control Valve
6-5 Pilot Valve
6-6 Swing Motor
6-7 Travel Motor
6-8 Proportional solenoid valve for P.T.O
7. Adjustment and Repair
7-1 Engine and Electric Equipment
7-2 Undercarriage
7-3 Controls
7-4 Swing Bearing
7-5 Hydraulic Equipment
7-6 Work Implements
7-7 Cabin
7-8 Air Conditioner
8. Troubleshooting
8-1 Non-Breakdowns
8-2 Quick Reference Table for Troubleshooting



